Агенция K&G предлага на вашето внимание :
Двуетажна тухлена на плоча вила в отлично състояние в местността ” Обзор ” .
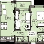
Имота е със ЗП ; 80 кв.м и дворно място – 1200 кв.м.
Първия етаж се състои от : антре , трапезария с кухненски бокс , спалня и санитарен възел .
Втория етаж е със самостоятел вход . Състои се от : антре , спалня .
Имота е с много подобрения ( ламинат , теракот , PVC – дограма , интериорни врати и др . ) .
Отопление – камина !
Продава се с обзавеждането !
С видеонаблюдение !
Цена – 85 000 евро .
За огледи и повече информация , относно имота или други атрактивни предложения на агенцията не се колебайте да ни потърсите : 08******91 или на ЛС !
Обади се и цитирай този код В – 011
АГЕНЦИЯ K&G – КЛЮЧЪТ КЪМ ВАШИЯТ НОВ ДОМ
Compare listings
Сравняване