Компания ’Х’ представя на Вашето внимание къща в с. Езерово!
МЕСТОПОЛОЖЕНИЕ: Имотът се намира в село Езерово, област Пловдив, част от община Първомай. Селото е разположено в живописна местност в подножието на Родопите, в близост до река Каяликека и на около 13 км от град Първомай. Районът се отличава с спокойна атмосфера, чист въздух и красива природа, което го прави идеален за постоянно живеене или отдих. Достъпът до селото е удобен, а в близост се намират минерални извори и природни забележителности, които допринасят за привлекателността на района.
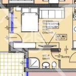
РАЗПРЕДЕЛЕНИЕ: Квадратурата на къщата е 90 кв.м. Антре, голям коридор, 2 спални, кухня с всекидневна, баня и тоалетна.
Заповядайте да Ви го покажем. Използвайки нашите услуги Вие ще превърнете закупуването на новия си дом в едно приятно изживяване, ще получите персонален консултант, съдействие при кандидатстване за кредит от всички банки в България, интериорни дизайнери и екип, който да се погрижи за нужните документи по Вашата сделка. На Ваше разположение сме всеки ден, от понеделник до неделя от 09:00 до 20:00ч. Възползвайте се от безплатна консултация в наш офис, където ще ви спестим време и ще ви запознаем с всички актуални имоти в България, отговарящи на Вашето търсене. Свържете се с нас и цитирайте кода към имота: 80642
Compare listings
Сравняване