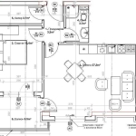
Продава се масивна двуетажна къща след основен ремонт,разположена в спокойно и добре уредено село Конуш, област Пловдив. Селото се намира на 20 км от Асеновград и 40 км.от Пловдив.Имота е идеален както за целогодишно живеене, така и за почивка през уикендите, съчетавайки чист въздух и удобен достъп до града.Двор-950 кв.м ,сонда, лятна кухня с баня и тоалетна, стопански постройки. Всеки етаж е с по 53 кв.м, бани и тоалетни.
Compare listings
Сравняване