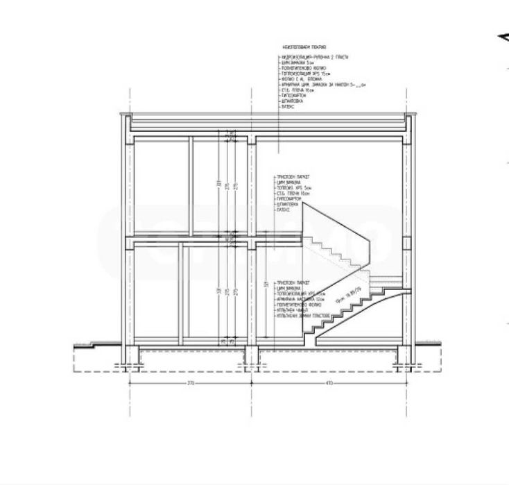
ТОПИММО предлага за продажба двуетажна монолитна къща в строеж в село Куманово. Висококачествено ново строителство, изпълнено по всички стандарти, стилна архитектура с правилни форми на стаите за удобно обзавеждане на вашия нов дом. Парцел с площ 638 кв.м., къща с РЗП 170 кв.м.
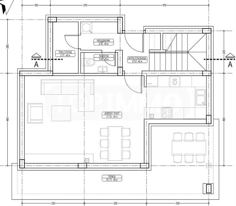
Първи етаж: антре, просторна всекидневна 37 кв.м. с излаз на веранда, техническо помещение/килер, санитарен възел, стълбище към втори етаж;
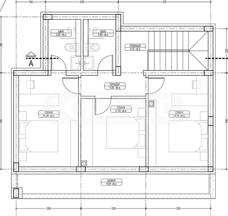
Втори етаж: коридор, родителска спалня 14.4 кв.м. със собствен санитарен възел, втора спалня 11.5 кв.м., трета спалня 14.2 кв.м., втори санитарен възел на етажа, трите стаи с излаз на тераса.
Къщата се издава по БДС с висококачествени материали, входна врата, изградени ВиК, ел. инсталация.
Този имот дава възможност за отглеждане на вашите деца в здравословна и спокойна среда, а на вас удобството да живеете в близост до града, за да не губите връзката с динамичния начин на живот.
Можем да организираме оглед в удобно за вас време, свържете се с нас! Референтен номер: PL-4675
Compare listings
Сравняване