Продава се Къща в с. Малка Верея, Област Стара Загора – 135 кв.м за 1223 €/кв.м

  • 165,000€
  • 1,222€/m²
Област Стара Загора, с. Малка Верея
Продава се Къща в с. Малка Верея, Област Стара Загора - 135 кв.м за 1223 €/кв.м - Снимка #4 Продава се Къща в с. Малка Верея, Област Стара Загора - 135 кв.м за 1223 €/кв.м - Снимка #5
  • Къща
  • Тип на имота
  • 135
  • кв.м
  • 2025
  • Година на строителство
За продажба Агенция
Област Стара Загора, с. Малка Верея
  • 165,000€
  • 1,222€/m²

Накратко за имота

  • Къща
  • Тип на имота
  • 135
  • кв.м
  • 2025
  • Година на строителство

Описание

Номер на обява: SZ0029

Имоти Томов Стара Загора представят на Вашето внимание модерна новопостроена къща с площ от 133 кв.м. с невероятна гледка в предпочитаното село Малка Верея. Този прекрасен имот е разположен върху собствен ограден парцел от 700 кв.м..

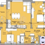
Разпределението на имота:

Просторна всекидневна с кухня;

Първа Родителска спалня със собствена баня и тоалетна;

Втора Детска спалня;

Трета Гостна/Детска спалня;

Втора баня с тоалетна;

Мокро помещение;

Веранда, която води до двора на къщата;

Имота е построен с висококачествени материали, като всичко е измислено до последния детайл. В цялата къща има монтирани големи висококачествени ПВЦ дограми , които ще придадат в новият Ви дом , много светлина , чувство за простор и постоянен изглед към невероятната панорамна гледка. В цялата къща са положени тръби за подово отопление , което ще я направи изключително функционална и икономична. Този имот е една възможност- да бъде вашият така мечтан ДОМ!

За повече информация посетете нашият офис, находящ се в гр. Ст. Загора на ул. “Майор Таньо Кавалджиев” 135 – Имоти Томов Ст. Загора, тел: 08******09.

Детайли

Обновено на януари 1, 1970 в 12:00 am
  • Цена: 165,000€
  • Квадратура: 135 кв.м
  • Земя: 700 кв.м
  • Година на строителство: 2025
  • Тип на имота: Къща
  • Операция: За продажба

Допълнителни детайли

  • Строителство: Тухла
  • Брой етажи на сградата: 1
  • Отопление: Електричество
  • Състояние на сградата: Завършена
  • Град с. Малка Верея
  • Област Област Стара Загора
  • Държава България

0 Отзив

Sort by:
Leave a Review

    Leave a Review

    Compare listings

    Сравняване
    Olx Недвижими Имоти
    • Olx Недвижими Имоти