Компания X представя на Вашето внимание къща в Марково.
МЕСТОПОЛОЖЕНИЕ:Село Марково е в непосредствена близост до град Пловдив. То е разположено на около 8 километра североизточно от центъра на Пловдив.
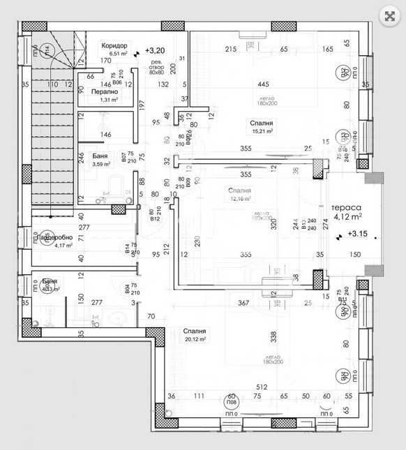
РАЗПРЕДЕЛЕНИЕ: Къщата разполага с площ от 165 кв.м. разпределена в два етажа. Първи етаж дневна, кухня и трепезария, тоалетна, входно антре,склад. Втори етаж три спални,
две бани с тоалетна, перално помещение,тереса.
СЪСТОЯНИЕ:В строеж.
Заповядайте да Ви го покажем. Използвайки нашите услуги Вие ще превърнете закупуването на новия си дом в едно приятно изживяване, ще получите персонален консултант, съдействие при кандидатстване за кредит от всички банки в България, интериорни дизайнери и екип, който да се погрижи за нужните документи по Вашата сделка. На Ваше разположение сме всеки ден, от понеделник до неделя от 09:00 до 20:00ч. Възползвайте се от безплатна консултация в наш офис, където ще ви спестим време и ще ви запознаем с всички актуални имоти в България, отговарящи на Вашето търсене. Свържете се с нас на 08******90 /на цената на един градски разговор/ или на 08******90 и цитирайте кода към имота: 375-13611
Compare listings
Сравняване