Продава се Къща в с. Марково, Област Пловдив – 165 кв.м за 1243 €/кв.м

  • 205,000€
  • 1,242€/m²
Област Пловдив, с. Марково
Продава се Къща в с. Марково, Област Пловдив - 165 кв.м за 1243 €/кв.м - Снимка #4 Продава се Къща в с. Марково, Област Пловдив - 165 кв.м за 1243 €/кв.м - Снимка #5
  • Къща
  • Тип на имота
  • 165
  • кв.м
  • 2026
  • Година на строителство

Накратко за имота

  • Къща
  • Тип на имота
  • 165
  • кв.м
  • 2026
  • Година на строителство

Описание

Титан Пропъртис има удоволствието да Ви представи двуетажна къща – близнак, находяща се в село Марково.

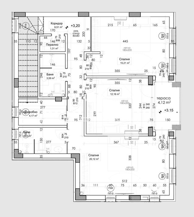
Имотът разполага с площ от 165 кв.м. , като разпределението включва: Входно антре, дневна с кухня и трапезария, баня с тоалетна и веранда; на втори етаж има коридор, три спални, две бани с тоалетна, гардеробно и перално помещение с тераса.

Жилището има ток, вода и канализация. Отоплението е електричество.

Парцела е с площ от 550 кв.м. Жилището се предлага на шпакловка и замазка, като така може да придобие мечтаният от Вас вид! За оглед на това и други атрактивни предложения, не се колебайте да ни потърсите на посочения телефон или да ни изпратите данните си чрез формата за запитване на сайта. Реф. номер: 75294

Детайли

Обновено на януари 1, 1970 в 12:00 am
  • Цена: 205,000€
  • Квадратура: 165 кв.м
  • Земя: 202 кв.м
  • Година на строителство: 2026
  • Тип на имота: Къща
  • Операция: За продажба

Допълнителни детайли

  • Строителство: Тухла
  • Брой етажи на сградата: 2
  • Отопление: Електричество
  • Състояние на сградата: В строеж
  • Град с. Марково
  • Област Област Пловдив
  • Държава България

0 Отзив

Sort by:
Leave a Review

    Leave a Review

    Compare listings

    Сравняване
    Olx Недвижими Имоти
    • Olx Недвижими Имоти