Продава се Къща в с. Марково, Област Пловдив – 293 кв.м за 922 €/кв.м

  • 270,000€
  • 922€/m²
Област Пловдив, с. Марково
  • Къща
  • Тип на имота
  • 293
  • кв.м
  • 2024
  • Година на строителство

Накратко за имота

  • Къща
  • Тип на имота
  • 293
  • кв.м
  • 2024
  • Година на строителство

Описание

Компания `Х` представя на Вашето внимание двуетажна нова къща в село Марково!

МЕСТОПОЛОЖЕНИЕ: Село Марково е една от най-търсените локации за закупуван на имот!

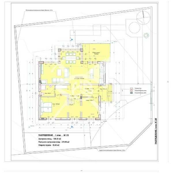
РАЗПРЕДЕЛЕНИЕ: Квадратурата на къщата е 293 кв. м. Първи жилещен етаж е с височина 3,03м,поместени са просторен хол с кухня от 48.66 кв м, с изцяло панорамни прозорци гледащи към Пловдив, възможност за развитие на остров в кухненският кът и камина в зоната за почивка. Непосредствено до хола се намира и верандата, която е с квадратура 16,46 кв. м, от където се отваря невероятна гледка към града!На същият етаж има спалня-18,62 кв. м,офис-10,90 кв. м, както и баня с тоалетна 5 кв. м,стълбище с килер водещо до втори жилищен етаж.Разпределението на вторири жилищен етаж както следва:родителска спалня със самостоятелна тоалетна, гардеробна и тераса гледаща към Пловдив с обща квадратура 48,66 кв.м,детска стая – 20,20 кв. м. със самостоятелна тераса 6,32 кв. м. с невероятна гледака към града и гората,още една детска стая – 18,63 кв. м.

СЪСТОЯНИЕ: Конструкцията е стоманобетонна със стоманобетонна плоча, керамични тухли и керемиди.

Заповядайте да Ви ги покажем. Използвайки нашите услуги Вие ще превърнете закупуването на новия си дом в едно приятно изживяване, ще получите персонален консултант, съдействие при кандидатстване за кредит от всички банки в България, интериорни дизайнери и екип, който да се погрижи за нужните документи по Вашата сделка. На Ваше разположение сме всеки ден, от понеделник до неделя от 09:00 до 20:00ч. Възползвайте се от безплатна консултация в наш офис, където ще ви спестим време и ще ви запознаем с всички актуални имоти в България, отговарящи на Вашето търсене. Свържете се с нас на 08*********90 или на 08*********90 и цитирайте кода към имота:40265

Детайли

Обновено на януари 1, 1970 в 12:00 am
  • Цена: 270,000€
  • Квадратура: 293 кв.м
  • Земя: 560 кв.м
  • Година на строителство: 2024
  • Тип на имота: Къща
  • Операция: За продажба

Допълнителни детайли

  • Строителство: Тухла
  • Брой етажи на сградата: 2
  • Отопление: Локално
  • Състояние на сградата: Завършена
  • Град с. Марково
  • Област Област Пловдив
  • Държава България

0 Отзив

Sort by:
Leave a Review

    Leave a Review

    Compare listings

    Сравняване
    Olx Недвижими Имоти
    • Olx Недвижими Имоти