Предлагаме за продажба двуетажна къща с голям двор, разположена в добре уреденото село Масларево, което отстои на 18 км. от гр. Полски Тръмбеш и на 48 км. от Велико Търново. Населеното място е близо до главен път, осигуряващ бърз и лесен достъп до основни транспортни артерии.
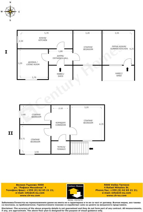
Къщата е с площ от 130 кв. м., разпределени между два етажа. На първият етаж има кухня с трапезария, дневна, входно антре и една спалня. Външно стълбище води към втория етаж, където се помещават три спални, коридор и тераса, от която се открива приятна гледка към градината и околността. Имота е с дървени врати и дограма, с налични вода и електричество. Жилището се продава необзаведено, готово за реновиране и преустройство според вашите виждания.
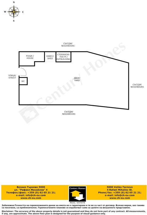
Парцелът от 1060 кв. м. е равен, ограден с телена мрежа, с малка стопанска постройка в него и достатъчно място за градинарство и креативност.
Имотът е с целогодишен достъп, което го прави отличен избор както за постоянно живеене, така и за ваканционен дом.
Реф. номер:145294
Compare listings
Сравняване