Компания `Х` представя на Вашето внимание къща в село Михилци!
МЕСТОПОЛОЖЕНИЕ: Село Михилци е малко населено място, разположено в Южна България, в област Пловдив. Намира се в подножието на Средна гора и е част от община Хисаря, която е известна със своите минерални извори и богата история. Михилци е спокойно и живописно село, което предлага традиционен български селски начин на живот.
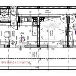
РАЗПРЕДЕЛЕНИЕ: Квадратурата на къщата е 80 кв. м. Разпределението се състoи от две спални с голям коридор,хол с трапезария и баня с тоалетна.Към къщата има лятна кухня с барбекю и чудесен двор!
СЪСТОЯНИЕ:Р еновирана през 2019 година.
Заповядайте да Ви го покажем. Използвайки нашите услуги Вие ще превърнете закупуването на новия си дом в едно приятно изживяване, ще получите персонален консултант, съдействие при кандидатстване за кредит от всички банки в България, интериорни дизайнери и екип, който да се погрижи за нужните документи по Вашата сделка. На Ваше разположение сме всеки ден, от понеделник до неделя от 09:00 до 20:00ч. Възползвайте се от безплатна консултация в наш офис, където ще ви спестим време и ще ви запознаем с всички актуални имоти в България, отговарящи на Вашето търсене. Свържете се с нас на 08*********90 или на 08*********90 и цитирайте кода към имота:52147
Compare listings
Сравняване