Компания ‘X’ представя на Вашето внимание двуетажна къща в с. Милево.
МЕСТОПОЛОЖЕНИЕ: Милево е малко, но живописно село, което се отличава с традиционната си архитектура. Природата в района е красива и недокосната, като предлага спокойствие и уединение на жителите.
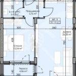
РАЗПРЕДЕЛЕНИЕ: Имотът разполага с площ от 140 кв.м.
Етаж 1: Хол с кухненски бокс, коридор с малка спалня, външна баня с тоалетна.
Етаж 2: Две спални и хол с кухненски бокс.
СЪСТОЯНИЕ: Имотът се предлага полуобзаведен, което Ви дава възможност да му придадете индивидуален стил.
Заповядайте да Ви го покажем. Използвайки нашите услуги Вие ще превърнете закупуването на новия си дом в едно приятно изживяване, ще получите персонален консултант, съдействие при кандидатстване за кредит от всички банки в България, интериорни дизайнери и екип, който да се погрижи за нужните документи по Вашата сделка. На Ваше разположение сме всеки ден, от понеделник до неделя от 09:00 до 20:00ч. Възползвайте се от безплатна консултация в наш офис, където ще ви спестим време и ще ви запознаем с всички актуални имоти в България, отговарящи на Вашето търсене. Нужен Ви е само кодът към имота: 58009
Compare listings
Сравняване