PSI Properies ви представя къща в с. Първенец, обл. Пловдив.
Характеристики на имота:
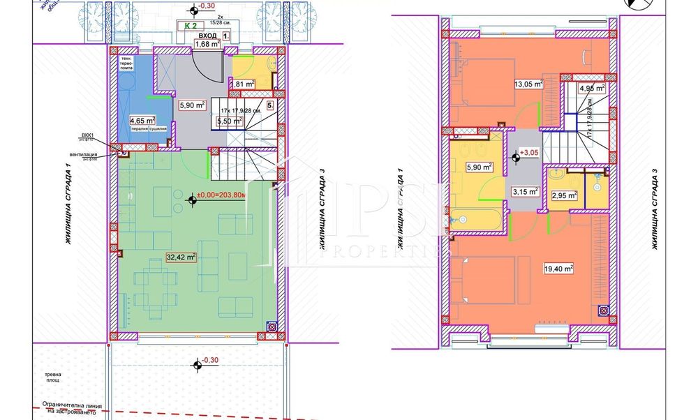
Площ: 121.80 кв.м.
Двор: 30 кв.м.
Цена: 170 000 евро
Паркомясто: 2 бр.
Разпределение:
Етаж 1: дневна с кухненски бокс, перално помещение, тоалетна
Етаж 2: две спални и две бани с тоалетни
Предимства:
Висококачествени материали и изпълнение на строителството.
Канализация и права вода
Краен етап на строителство
Близост до гр. Пловдив
Свържете се с нас за повече информация и оглед.
Compare listings
Сравняване