Продава се Къща в с. Първенец, Област Пловдив – 291 кв.м за 1014 €/кв.м

  • 295,000€
  • 1,014€/m²
Област Пловдив, с. Първенец
  • Къща
  • Тип на имота
  • 291
  • кв.м
  • 1990
  • Година на строителство
За продажба Агенция
Област Пловдив, с. Първенец
  • 295,000€
  • 1,014€/m²

Накратко за имота

  • Къща
  • Тип на имота
  • 291
  • кв.м
  • 1990
  • Година на строителство

Описание

оферта 1230

Новият комплекс разположен в подножието на Родопите се състои от 20 еднофамилни двуетажни къщи на калкан от два типа, Тип А и Тип Б, всяка на парцел от 350 м2. Комплексът е с контролиран достъп, разположен на 200 м от главния път за Първенец, с прекрасна гледка към Родопите. В непосредствена близост има супермаркет, ресторанти, търговски обекти, детски градини, училище.

Комплексът е разположен на само 15 минути от град Пловдив, който предлага множество възможности за забавления и развлечения за цялото семейство. Независимо дали търсите културни събития, музеи, красиви паркове или уютни кафенета и ресторанти, Пловдив ще ви предложи всичко, което желаете.

 

Като част от комплекса, се предвижда изграждането на богато озеленен парк с площ един декар с места за отдих (непоказан на схемата),както за ползване от жителите на комплекса и така и за техните гости. Отделна детска площадка на комплекса е специално проектирана за малките жители, за да се забавляват и играят, и да се радват на свободата си.

 

Всички сгради са с централен водопровод и канализация и са изпълнени с материали от водещи световни производители.

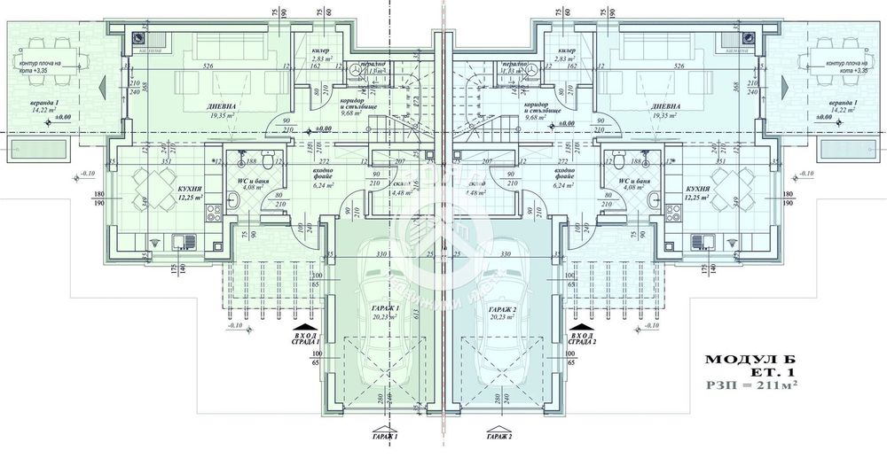
Къщите включват два основни жилищни етажа плюс тавански етаж за къща А с площ 40-50 м2 и мансарден етаж с площ 80-90 м2 за къща Б. Най-високата точка на мансардния и таванския етажи е 250 см, с прозорци тип табакера. Тези етажи могат да се ползват като допълнително жилищно или складово помещение, ателие, офис, фитнес, детски кът или за други нужди по усмотрение на собствениците. Към всяка къща има гараж за една кола с топла връзка към къщата. По желание, може да се добавят едно или две паркоместа.

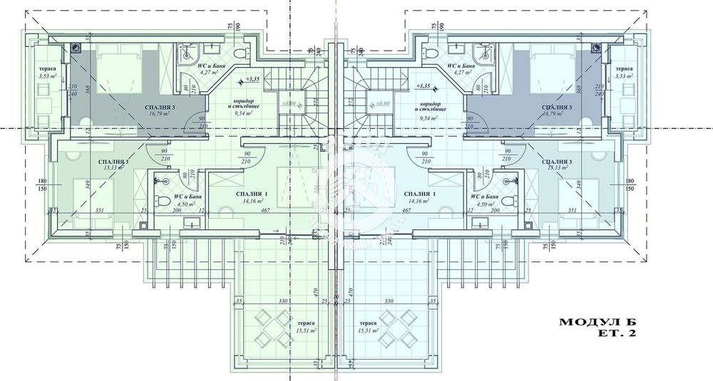
Къщи от Тип А са със следното разпределение:

РЗП на имотът е с 291 кв.м. дворът е 350кв.м. с разположение както следва :

Първи етаж:

– входно антре, трапезария с дневна и кухня

– веранда

– килер

– баня и тоалетна заедно

– гараж с топла връзка

Втори етаж:

-коридор и стълбище, баня и тоалетна на етажа

– спалня 1 заедно с тераса

– спалня 2

– спалня 3 със самостоятелни баня и тоалетна, гардеробна и тераса.

Ако имотът представлява интерес за Вас или имате въпроси, ни потърсете.

Детайли

Обновено на януари 1, 1970 в 12:00 am
  • Цена: 295,000€
  • Квадратура: 291 кв.м
  • Земя: 350 кв.м
  • Година на строителство: 1990
  • Тип на имота: Къща
  • Операция: За продажба

Допълнителни детайли

  • Строителство: Тухла
  • Брой етажи на сградата: 2
  • Отопление: Електричество
  • Състояние на сградата: Завършена
  • Град с. Първенец
  • Област Област Пловдив
  • Държава България

0 Отзив

Sort by:
Leave a Review

    Leave a Review

    Compare listings

    Сравняване
    Olx Недвижими Имоти
    • Olx Недвижими Имоти