Продава се Къща в с. Първенец, Област Пловдив – 325 кв.м за 908 €/кв.м

  • 295,000€
  • 908€/m²
Област Пловдив, с. Първенец
  • Къща
  • Тип на имота
  • 325
  • кв.м
  • 2024
  • Година на строителство

Накратко за имота

  • Къща
  • Тип на имота
  • 325
  • кв.м
  • 2024
  • Година на строителство

Описание

Компания X представя на Вашето внимание къща в с.Първенец.

МЕСТОПОЛОЖЕНИЕ:.Комплексът се състои от 17 еднофамилни къщи, всяка от които е в отделно УПИ.Имате уникална възможност да изберете едноетажни или двуетажни,с различна големина на двор и РЗП. В проектирането на всяка една от къщите сме вложили време и внимание, за да изпълним и задоволим и най-малките Ви нужди.

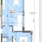
РАЗПРЕДЕЛЕНИЕ: Къщата разполага с площ от 325кв.м.Етаж 1:дневна с трапезария, тоалетна,спалня,баня с тоалетна,тоалетна,килер,веранда.Етаж 2: Три спални, две бани с тоалетна, перално помощение,две тераси,. Дворно място за ползване 333кв.м ,двоен гараж – 45,94 кв.м.

СЪСТОЯНИЕ: В строеж.

Заповядайте да Ви го покажем. Използвайки нашите услуги Вие ще превърнете закупуването на новия си дом в едно приятно изживяване, ще получите персонален консултант, съдействие при кандидатстване за кредит от всички банки в България, интериорни дизайнери и екип, който да се погрижи за нужните документи по Вашата сделка. На Ваше разположение сме всеки ден, от понеделник до неделя от 09:00 до 20:00ч. Възползвайте се от безплатна консултация в наш офис, където ще ви спестим време и ще ви запознаем с всички актуални имоти в България, отговарящи на Вашето търсене. Свържете се с нас на 08******90 /на цената на един градски разговор/ или на 08******90 и цитирайте кода към имота523-18450

Детайли

Обновено на януари 1, 1970 в 12:00 am
  • Цена: 295,000€
  • Квадратура: 325 кв.м
  • Земя: 333 кв.м
  • Година на строителство: 2024
  • Тип на имота: Къща
  • Операция: За продажба

Допълнителни детайли

  • Строителство: Тухла
  • Брой етажи на сградата: 2
  • Отопление: Електричество
  • Състояние на сградата: В строеж

Особености

  • Град с. Първенец
  • Област Област Пловдив
  • Държава България

0 Отзив

Sort by:
Leave a Review

    Leave a Review

    Compare listings

    Сравняване
    Olx Недвижими Имоти
    • Olx Недвижими Имоти