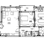
46000 евро Реф.номер 24023541 “Галя Консулт” продава къща край МОРЕТО, 139м2 на 1 етаж, 2022г, двор 700м2. Къщата е на Акт 15 и е необходимо да се довърши. Състои се от: входно антре, 4 спални, дневен тракт с кухненски кът, втора кухня, 2 бани с тоалета, килер. Партида за ток. Вода на границата. Канализация. Готови документи за сделка. Намира се в крайморското село Шкорпиловци. При нас се извършват всички технически и юридически проверки на имота, който сте избрали. Агенцията също така съдейства за отпускане на банков кредит при НАЙ-ДОБРИ условия за своите клиенти. За огледи и информация , моля цитирайте посоченият код на телефон : 08******46
Compare listings
Сравняване