Продава се Къща в с. Тръстиково, Област Бургас – 70 кв.м за 1329 €/кв.м

  • 93,000€
  • 1,329€/m²
Област Бургас, с. Тръстиково
Продава се Къща в с. Тръстиково, Област Бургас - 70 кв.м за 1329 €/кв.м - Снимка #4 Продава се Къща в с. Тръстиково, Област Бургас - 70 кв.м за 1329 €/кв.м - Снимка #5
  • Къща
  • Тип на имота
  • 70
  • кв.м
  • 2005
  • Година на строителство
За продажба Агенция
Област Бургас, с. Тръстиково
  • 93,000€
  • 1,329€/m²

Накратко за имота

  • Къща
  • Тип на имота
  • 70
  • кв.м
  • 2005
  • Година на строителство

Описание

Компания Х представя на Вашето внимание едноетажна къща в село Тръстиково.

МЕСТОПОЛОЖЕНИЕ: Намира се в спокойна част на района, близо до хранителен магазин, както и недалеч от центъра на селото.

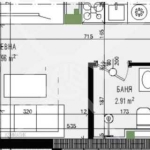
РАЗПРЕДЕЛЕНИЕ: Жилището разполага с площ 70кв.м., състои се от хол с кухня, две спални, тераса и котелна стая. Дворът е с площ 625кв.м.

СЪСТОЯНИЕ: Къщата се предлага напълно обзаведена, готова да се превърне в новия Ви дом!

Заповядайте да Ви го покажем. Използвайки нашите услуги Вие ще превърнете закупуването на новия си дом в едно приятно изживяване, ще получите персонален консултант, съдействие при кандидатстване за кредит от всички банки в България, интериорни дизайнери и екип, който да се погрижи за нужните документи по Вашата сделка. На Ваше разположение сме всеки ден, от понеделник до неделя от 09:00 до 20:00ч. Възползвайте се от безплатна консултация в наш офис, където ще ви спестим време и ще ви запознаем с всички актуални имоти в България, отговарящи на Вашето търсене. Свържете се с нас и цитирайте кода към имота: 55704

Детайли

Обновено на януари 1, 1970 в 12:00 am
  • Цена: 93,000€
  • Квадратура: 70 кв.м
  • Земя: 625 кв.м
  • Година на строителство: 2005
  • Тип на имота: Къща
  • Операция: За продажба

Допълнителни детайли

  • Строителство: Тухла
  • Брой етажи на сградата: 1
  • Отопление: Електричество
  • Състояние на сградата: Завършена
  • Град с. Тръстиково
  • Област Област Бургас
  • Държава България

0 Отзив

Sort by:
Leave a Review

    Leave a Review

    Compare listings

    Сравняване
    Olx Недвижими Имоти
    • Olx Недвижими Имоти