Каменна къща близнак с лице на две улици.
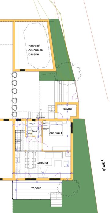
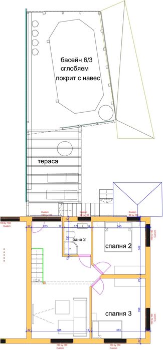
Страхотна гледка на юг. С три спални, две бани, голяма изба в полусутерен и полуразрушена плевня в задния двор. На първи етаж има дневна с кухня и трапезария, спалня и баня. Вход откъм голяма тераса от юг или откъм задния двор. Вътрешна и външна стълби свързват дневната с по-малко дневно пространство на втория етаж, където има още две спални и баня.
Стоманобетонна плоча за под на първи етаж, гредоред към втори етаж.
Има нов климатик, за отопление е предвидена пелетна камина с въздуховоди.
Показан е проект как може да изглежда къщата санирана, както и възможността за поставяне на басейн и изграждане на открита тераса на 2ри етаж. Малко помещение на двора може да се преустрои на сауна.
С още малко средства и усилия може да бъде завършена по ваш вкус.
Директно от собственик.
Compare listings
Сравняване