Замяна за апартамент е също възможно.
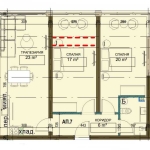
Продавам самостоятелна къща на 3 надземни етажа с общо рзп. 160кв.м. Изложение запад. Разположени по следния начин: 1 етаж затворено предверие 8кв, кухня с трапезария и светла дневна. Втори етаж две спални ,баня +тоалетна, трети етаж огледан на етаж 2 с много лекия скосявания. Възможност за уголемяване на втори етаж. Двор от 840кв.м със страхотна гледка към Витоша. До къщата черен път няма! Двора се състои от: навес от 60кв за паркиране на два автомобила + барака за градински инструменти (не са включени в квадратурата на къщата).220кв равна част с райграс + метална катерушка с люлка. Кът за отдих в прохладната част на двора. Отопление е на водна риза с палетна камина (разходи за отопление на месец се равняват на голям апартамент ) + нов климатик . СОТ. Изключително чист въздух. На снимка можете да видите разликата във въздуха и мъглата в София и в квартала. Последните 2 години района се развива много в ниската си част. Същевременно къщата се намира в частта в която е спокойно и с много чист въздух.
Къщата се продава напълно обзаведена . Плюс всичко необходими машини и инструменти за поддържане на двор.
Compare listings
Сравняване