ERA Парадайс предлага за продажба къща в комплекс от 8 къщи, всяка със собствен двор и паркинг за 2 автомобила. Всеки един от обектите е напълно автономен и самостоятелен. Комплексът е с нескриваема обширна панорама, от която се вижда целият град. Къщите са изпълнени с прецизен архитектурен дизайн, при който водеща е функционалността, а жилищните пространства са с удобства, предоставяйки практичност, уединеност и комфорт. Възможност за живот на добре подбрана локация, която осигурява лесен достъп до основни услуги и удобства в града, едновременно с изключително търсеното спокойствие в забързаното ежедневие.
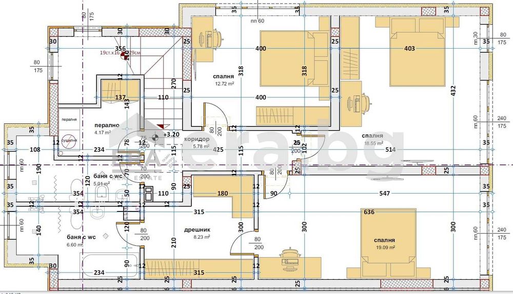
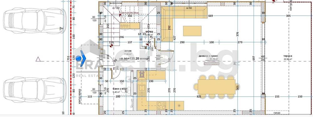
Всяка една от къщите е на два етажа и функционално е разпределена по следния начин:
На първия етаж са разположени входно антре (7.24 кв.м.), дневна с кухненска част и трапезария (51.13 кв.м.), от която се излиза на страхотна веранда (22.98 кв.м.), баня с тоалет (5.40 кв.м.), килер (2.68 кв.м.) .
Вътрешно стълбище отвежда към втория етаж, където са разположени 3 спални (с площ от 12.72 кв.м., 18.55 кв.м. и 19.09 кв.м.), най-голямата (родителската) с дрешник (8.23 кв.м.) и самостоятелен санитарен възел (6.60 кв.м.). На етажа са разположени още един санитарен възел (5.01 кв.м.), общ за другите две спални и перално помещение (4.17 кв.м.). Прозорците са френски, а изложението – югоизток – гаранция за светлина и огряване през целия ден.
Модерни къщи, изградени с изчистени линии и функционалност. Строителната конструкция е изградена от здрави и устойчиви материали, като стомана, бетон и стъкло, които осигуряват не само стабилност, но и изчистен външен вид. За фасадните плоскости се предвижда каменна облицовка от тънък камък за първия етаж, еталбонд в дървесен растер и силикатна мазилка в бял и сив цвят за вторият етаж. Отворите по фасадите са предвидени от висок клас алуминиева дограма.
Къщите са обкръжени от просторни дворове. Пред къщата се разстила градинска зона, която е удобна и приятна за отдих. В задната част на двора има самостоятелен паркинг за 2 автомобила и топла връзка към къщата.
Compare listings
Сравняване