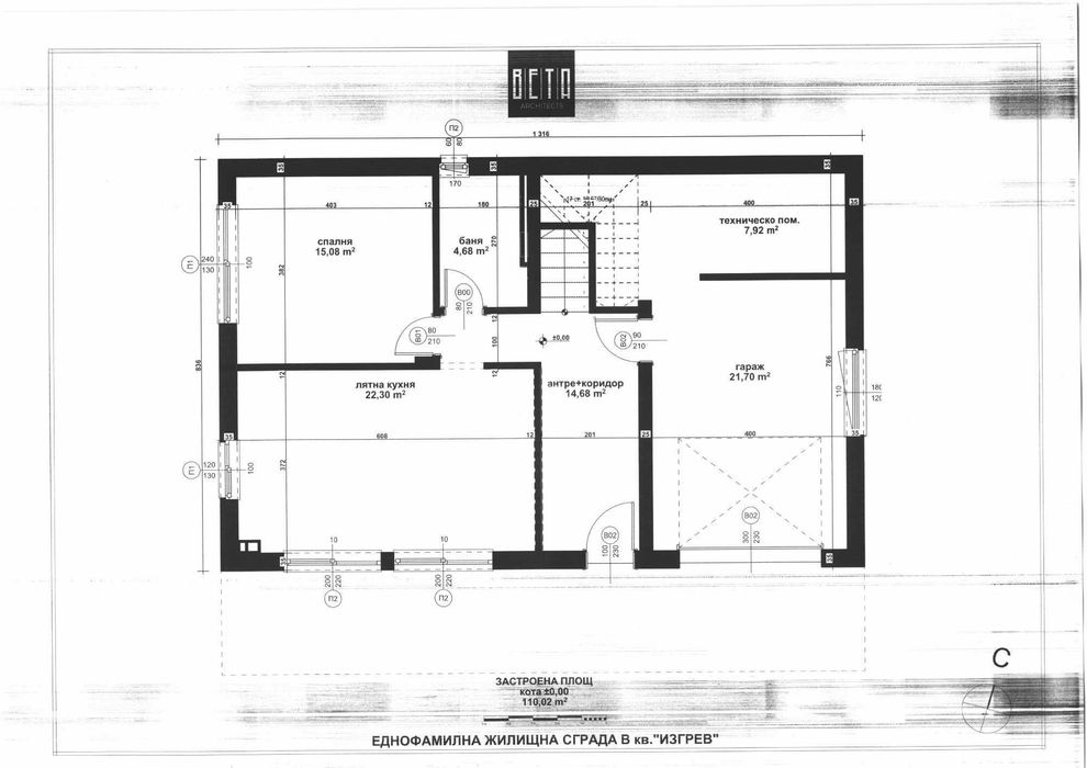
HOLDING GROUP real estate представя на Вашето внимание чудесна новострояща се къща в кв. Изгрев. В парцел с площ от 540 кв.м. се изграда къща с РЗП 250 кв.м. Разпределението е следното:
етаж едно се състои от коридор, просторна лятна кухня /22,30 кв.м./, спалня /15,08 кв.м/, баня с тоалетна, техническо помещение, гараж и стълби към етаж две.
етаж две се състои от коридор, голям дневен тракт /65,39 кв.м./ с излаз на тераса, спалня /14,49 кв.м./ с дрешник /5,86 кв.м./, спалня /15,08 кв.м./ и баня с тоалетна .
Имотът е разположен само на 400 м. от главен път. От кота 0 се открива прекрасна морска и градска панорама. Отоплението на къщата е решено посредством локално газово отопление. Перфектен дом, съчетаващ лукс, простор, тишина и чист въздух. Строителството е най- висок клас, съобразено с всички изисквания и норми за качество.
За повече информация, моля да се обадите на посоченият телефонен номер и да цитирате кода на офертата.
Код на офертата № 6990
Compare listings
Сравняване