Матекс Имоти продава новострояща ДВУЕТАЖНА КЪЩА С НЕСКРИВАЕМА МОРСКА ПАНОРАМА в местност „Прибой“, 190 м.кв., в затворен комплекс с осем самостоятелни еднофамилни къщи със собствен ДВОР и КАНАЛИЗАЦИЯ!
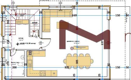
ПЪРВИ ЕТАЖ: входно антре, килер, баня-тоалет, стълбищна клетка, дневна-трапезария 51 м.кв с пряка връзка към външната тераса на двора. ВТОРИ ЕТАЖ: три спални – едната със собствена баня-тоалетна и дрешник (32 м,кв), спалня (17 м.кв), спалня (14м.кв.) втора баня с тоалет и перално помещение. Вертикалната комуникация между нивата се осъществява посредством дву-раменна интериорна стълба. Конструкцията на сградата е изпълнена с монолитна, стоманобетонова, зидария от тухли Wienerberger’ с средиземноморски покрив. Стени ще са топлоизолирани с топлоизолационна система -10см. и завършени със силикатна мазилка. Дограмата е PVC, две паркоместа. Комплексът е в близост до спирка на градския транспорт на 1,5 км от центъра на кв. Галата и на 10 км от центъра на гр. Варна.
За контакт 08********04
Compare listings
Сравняване