ФАМИЛНА КЪЩА! ИЗРЯДНА ДОКУМЕНТАЦИЯ! ОЗЕЛЕНЕН ДВОР! ТИШИНА! ПРОСТОРНИ СТАИ! ПАНОРАМА КЪМ ВАРНЕНСКОТО ЕЗЕРО!
www.maximmo.bg референтен номер: 6081
Предлагаме на Вашето внимание новострояща се функционална къща извън градския шум – в местност “Сълзица”.
Имотът се състои от два етажа с РЗП 153м2 и 430м2 озеленен двор.
Изложение: ЮГ
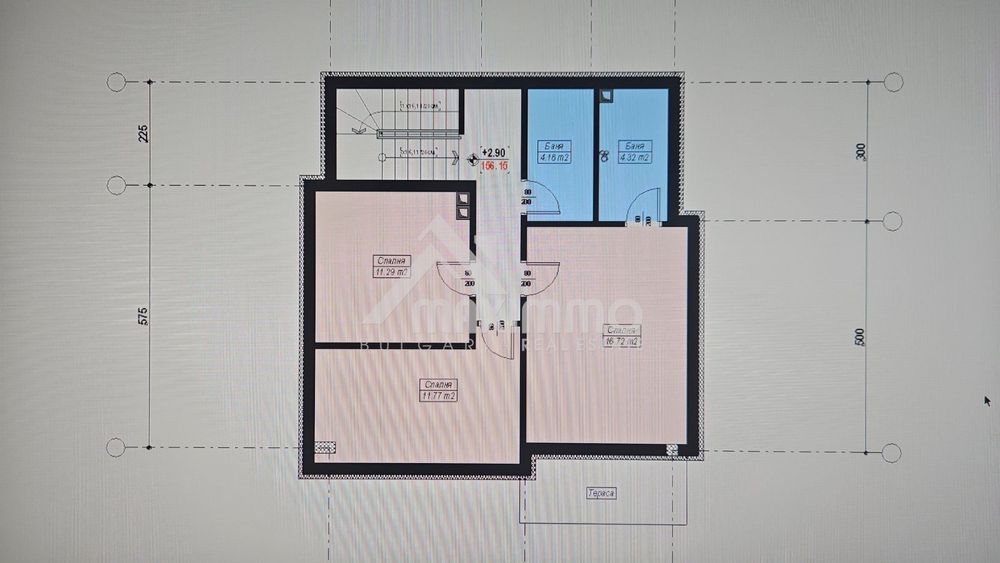
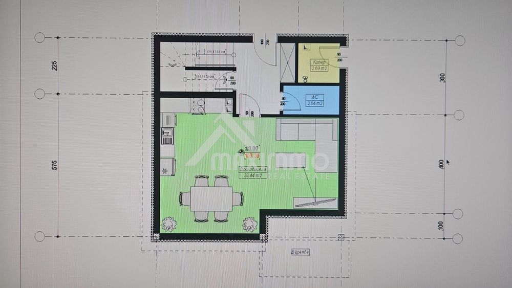
Разпределение:
Етаж 1: входно антре, голяма всекидневна с кухненски кът, място за хранене и мека мебел /35м2/ ,тоалетна, килер, излаз на южна веранда от всекидневната.
Етаж 2: вътрешно стълбище води към коридор, три спални, две бани-тоалетни, излаз на тераса с панорама към града и Варненското езеро!
Осигурени две паркоместа до входа на къщата!
Строителство:
Имотът е завършен съгласно „БДС“ – Екстериорна блиндирана врата. Под :
нивелирана замазка подготвена за полагане на гранитогрес, паркет или настилка по Ваш избор.
Стени : машинно обработена гипсова мазилка с турбозол подготвена за боя или тапет по ваш
избор. Мокри Помещения : ръчно обработена циментова мазилка подготвена за полагане на
фаянс и теракота .ВиК инсталация „на тапа“, ЕЛ инсталация и PVC дограма.
Срок за завършване: АПРИЛ 2026 година!
Предоставяме възможност за завършване до ключ!
Дворът е с ограда върху бетонова основа и елементи от ковано желязо. Засаден райграс и инсталирана поливна система.
Имотът е присъединен към Ел дружеството с пардита. Канализацията е решена чрез септична яма с пречиствателна станция. Дренаж. Вода от действащ сондаж!
За локацията:
Разполага с бърз и лесен достъп до всяка точка на града.Новопостроени къщи с целогодишно живеещи около имота. Два големи супермаркета. Района предлага тишина и уединение без да прекъсва връзката с удобствата на града!
Предимства:
Отличен имот с добра локация!
Правилни форми на стаите с добри разпределения!
Къща със собствен парцел!
Висококачествено строителство с иновативни решения!
Обгърнато от зеленина място и НЕскриваема панорама!
Оглед на имота: Ние разполагаме с офис на територията на град Варна и можем да организираме оглед в удобно за Вас време.
Екипът ни оказва съдействие за предоставянето на банков кредит с най-добри условия за клиента.
Разполагаме с юридически отдел за обстойна проверка на имота при сделка.
За запитвания, съдействие и консултация се свържете с нас и цитирайте кода на офертата.
Вашият личен брокер – Никола Христов 08******62
Compare listings
Сравняване