Номер на оферта: 617947
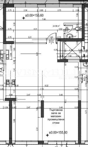
Агенция за недвижими имоти “SEVEN HILLS REAL ESTATE Co” продава търговско помещение с обща площ от 115.08 кв.м.
Намира се в кв. Тракия, на мястото на ресторант “Тони-2000”, в непосредствена близост до хотел “Йегерхоф”.
Магазинът е разположен на партерен етаж от общо осем в новострояща се сграда с асансьор. Помещението разполага с големи витринни прозорци, което му осигурява перфектна видимост от пътя.
За повече информация или оглед се свържете с нас на посочения телефонен номер.
Отговорен брокер:
Иван Генев
Compare listings
Сравняване