Компания `ЕКС` представя на Вашето внимание магазин в кв. Малинова долина.
МЕСТОПОЛОЖЕНИЕ: В близост до булевард Климент Охридски.
СТРОИТЕЛСТВО: Магазинът е ситуиран на партерен етаж в тухлена сграда с АКТ 16.
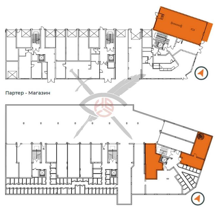
РАЗПРЕДЕЛЕНИЕ: Имотът разполага с площ от 310 кв.м. разпределена в
Партер: едно основно помещение със санитарен възел.
Сутерен: едно просторно помещение, склад и двоен гараж.
СЪСТОЯНИЕ: Необзаведен.
ОСОБЕНОСТИ: Към магазина има двор !
Заповядайте да Ви го покажем. Използвайки нашите услуги Вие ще превърнете закупуването на новия си дом в едно приятно изживяване, ще получите персонален консултант, съдействие при кандидатстване за кредит от всички банки в България, интериорни дизайнери и екип, който да се погрижи за нужните документи по Вашата сделка. На Ваше разположение сме всеки ден, от понеделник до неделя от 09:00 до 20:00ч. Възползвайте се от безплатна консултация в наш офис, където ще ви спестим време и ще ви запознаем с всички актуални имоти в България, отговарящи на Вашето търсене. Свържете се с нас на 08*********90 или на 08*********57 и цитирайте кода към имота: 76111.
Compare listings
Сравняване