Продава се Многостаен апартамент в Айтос – 94 кв.м за 450 €/кв.м

  • 82,790€
  • 450€/m²
Област Бургас, гр. Айтос
  • Апартамент
  • Тип на имота
  • 94
  • кв.м
  • 1990
  • Година на строителство

Накратко за имота

  • Апартамент
  • Тип на имота
  • 94
  • кв.м
  • 1990
  • Година на строителство

Описание

Компания Х представя на Вашето внимание многостаен апартамент в Айтос.

МЕСТОПОЛОЖЕНИЕ: Айтос е малък, но исторически значим град в Югоизточна България, разположен на около 28 км северозападно от Бургас.

СТРОИТЕЛСТВО: Апартаментът е разположен на седми етаж, тухла.

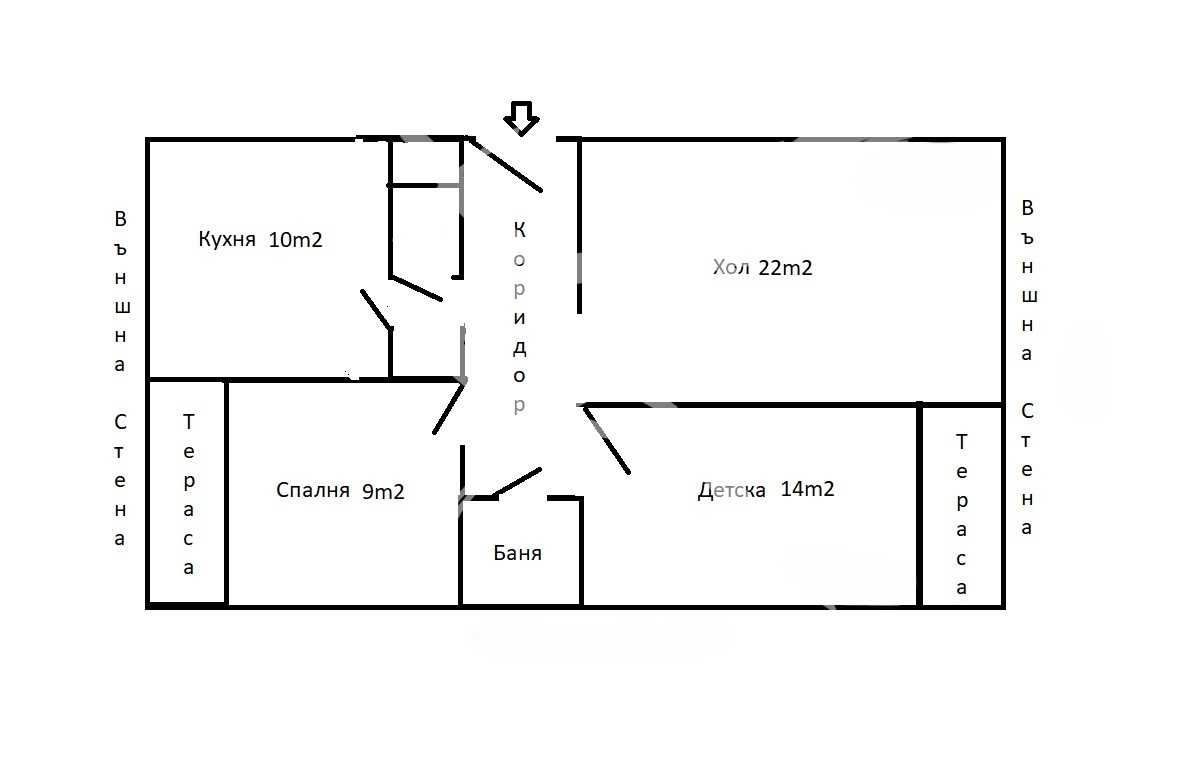
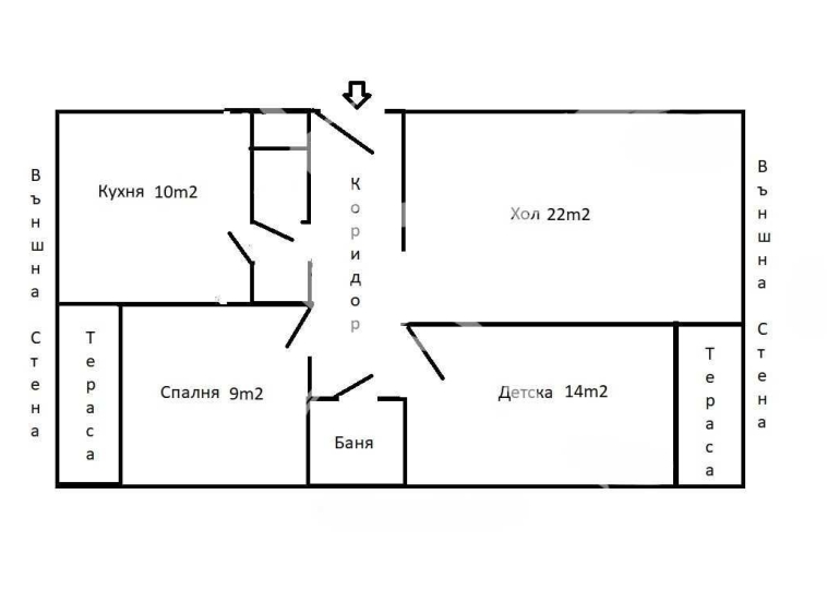
РАЗПРЕДЕЛЕНИЕ: Жилището разполага с площ 94кв.м. и Дневна, Кухня, 2 Спални, Баня, Тоалетна, Мокро, Антре и 2 тераси – остъклени с дограма и саниран блок.

СЪСТОЯНИЕ: Имотът се предлага необзаведен и за цялостен ремонт.

Заповядайте да Ви го покажем. Използвайки нашите услуги Вие ще превърнете закупуването на новия си дом в едно приятно изживяване, ще получите персонален консултант, съдействие при кандидатстване за кредит от всички банки в България, интериорни дизайнери и екип, който да се погрижи за нужните документи по Вашата сделка. На Ваше разположение сме всеки ден, от понеделник до неделя от 09:00 до 20:00ч. Възползвайте се от безплатна консултация в наш офис, където ще ви спестим време и ще ви запознаем с всички актуални имоти в България, отговарящи на Вашето търсене. Свържете се с нас и цитирайте кода към имота:76897

Детайли

Обновено на януари 1, 1970 в 12:00 am
  • Цена: 82,790€
  • Квадратура: 94 кв.м
  • Стаи: 5+
  • Година на строителство: 1990
  • Тип на имота: Апартамент
  • Операция: За продажба

Допълнителни детайли

  • Строителство: Тухла
  • Етаж: 7-ми
  • Брой етажи на сградата: 8
  • Отопление: Електричество
  • Обзавеждане: Необзаведен
  • Състояние на сградата: В строеж
  • Преход: Без преход
  • Град Айтос
  • Област Област Бургас
  • Държава България

0 Отзив

Sort by:
Leave a Review

    Leave a Review

    Compare listings

    Сравняване
    Olx Недвижими Имоти
    • Olx Недвижими Имоти