Продава се Многостаен апартамент в Пловдив, Христо Смирненски – 222 кв.м за 1500 €/кв.м

  • 333,000€
  • 1,500€/m²
Област Пловдив, гр. Пловдив, Христо Смирненски
  • Апартамент
  • Тип на имота
  • 222
  • кв.м
  • 2025
  • Година на строителство
За продажба Агенция
Област Пловдив, гр. Пловдив, Христо Смирненски
  • 333,000€
  • 1,500€/m²

Накратко за имота

  • Апартамент
  • Тип на имота
  • 222
  • кв.м
  • 2025
  • Година на строителство

Описание

Компания X представя на Вашето внимание многостаен апартамент в Христо Смирненски!

МЕСТОПОЛОЖЕНИЕ: Христо Смирненски е един от най-предпочитаните квартали в западната част на Пловдив. Разположен близо до Гребната база и парк ’Отдих и култура’, районът съчетава спокойствие, зеленина и удобен достъп до централната част на града. Отличава се с добра инфраструктура, модерни жилищни сгради, множество училища, детски градини, магазини и удобен градски транспорт. Подходящ е както за семейно жилище, така и за инвестиция.

СТРОИТЕЛСТВО: Апартаментът се намира на 4-ти, етаж, в сграда ново строителство.

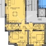
РАЗПРЕДЕЛЕНИЕ: Жилището разполага с площ от 222 кв.м., разпределена в 2 отделни апартамента, които може да се закупят както заедно, така и самостоятелно.

СЪСТОЯНИЕ: В строеж.

Заповядайте да Ви го покажем. Използвайки нашите услуги Вие ще превърнете закупуването на новия си дом в едно приятно изживяване, ще получите персонален консултант, съдействие при кандидатстване за кредит от всички банки в България, интериорни дизайнери и екип, който да се погрижи за нужните документи по Вашата сделка. На Ваше разположение сме всеки ден, от понеделник до неделя от 09:00 до 20:00ч. Възползвайте се от безплатна консултация в наш офис, където ще ви спестим време и ще ви запознаем с всички актуални имоти в България, отговарящи на Вашето търсене. Свържете се с нас и цитирайте кода към имота: 637-20575

Детайли

Обновено на януари 1, 1970 в 12:00 am
  • Цена: 333,000€
  • Квадратура: 222 кв.м
  • Стаи: 5+
  • Година на строителство: 2025
  • Тип на имота: Апартамент
  • Операция: За продажба

Допълнителни детайли

  • Строителство: Тухла
  • Етаж: 3-ти
  • Брой етажи на сградата: 3
  • Отопление: Електричество
  • Обзавеждане: Необзаведен
  • Състояние на сградата: В строеж
  • Преход: Без преход
  • Град Пловдив
  • Област Област Пловдив
  • Квартал Христо Смирненски
  • Държава България

0 Отзив

Sort by:
Leave a Review

    Leave a Review

    Compare listings

    Сравняване
    Olx Недвижими Имоти
    • Olx Недвижими Имоти