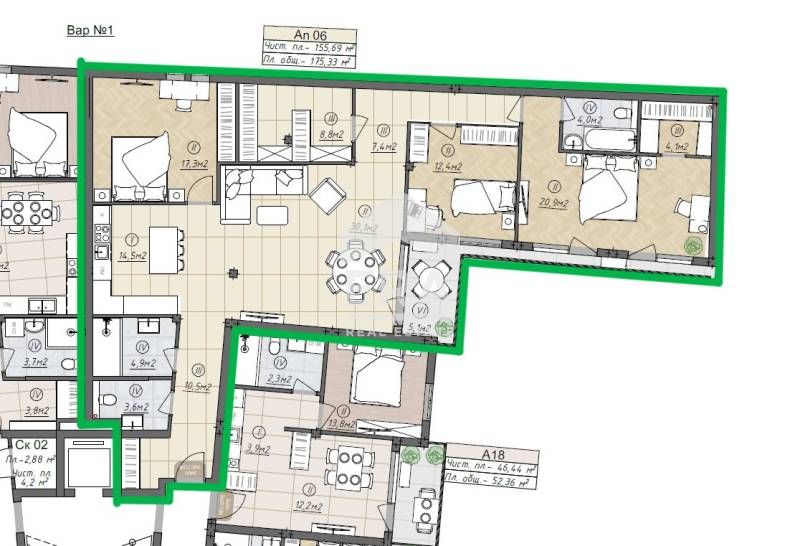
ЕРА Максима предлага за продажба многостаен апартамент находящ се в жилищна стилна сграда от затворен тип в к.к. Чайка, в непосредствена близост до плаж Кабакум. Жилището е разположено на трети етаж в седеметажна тухлена сграда с асансьор. Застроената площ на апартамента е 155,69 кв.м. , с общите части – 175,33 кв.м. и се състои се от входно антре , дневна с трапезария и кухня, килер, три спални, като едната е със собствена баня с тоалет и гардеробна, баня, тоалет и тераса. Имота се предлага по БДС с възможност за завършване до ключ, проектиране и изработка на обзавеждането по желание на клиента.
Има възможност за покупка на наземно паркомясто на цена 15 000 евро.
Имота е подходящ за целогодишно живеене или почивка, а също и възможност за инвестиция и получаване на доход от недвижимия имот.
Бутиковата сграда е от затворен тип, разположена непосредствено до плаж Кабакум и ще предлага на своите собственици спокойствие, комфортна атмосфера, 24 часова охрана, озеленени площи и красиви морски гледки. Етапът на строителство към момента е след Акт 14. В жилищната сграда се предлагат и други едностайни, двустайни и многостайни апартаменти с панорамни тераси на първа линия. Има възможност за избор на етаж, разположение и квадратури вариращи от 35 m² до 231 m².
Курортен комплекс Чайка е с добре изградена инфраструктура, с транспортна обезпеченост,заведения, с целогодишно живущи и на минути от центъра на град Варна.
ЕРА е партньор на КРЕДИТЕРА – лицензиран КРЕДИТЕН ПОСРЕДНИК , предлагащ БЕЗПЛАТНА консултация на своите клиенти!
оферта 2606406
Оферта №2606406
Compare listings
Сравняване