ЕРА Царевец има удоволствието да представи ЕКСКЛУЗИВНО на вашето внимание просторен многостаен апартамент, разположен на тихо и спокойно място в ж.к. Акация, ул. “Панорамна”. Този имот впечатлява със своите светли помещения, функционално разпределение и завладяваща панорамна гледка към връх Бузлуджа и крепостта Царевец.
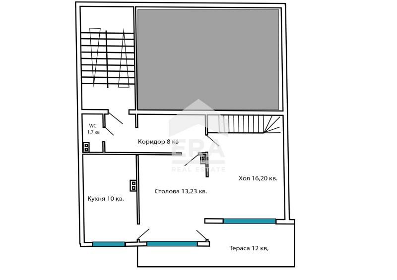
Апартаментът се състои от два етажа, със застроена площ от 120 кв.м и предлага отлични възможности за комфортно семейно жилище. Влизайки в апартамента, ще бъдете посрещнати от коридор, който води към просторен и светъл хол, предлагащ идеални условия за почивка и релаксация. Холът е свързан с трапезария и кухня, които създават приятна атмосфера за семейни събирания. За повече удобство, разполагате и с тоалетна.
Изключителен акцент на етажа е терасата, от която се разкрива спираща дъха панорамна гледка към планината, връх Бузлуджа и Царевец, предоставяйки спокойствие и усещане за простор.
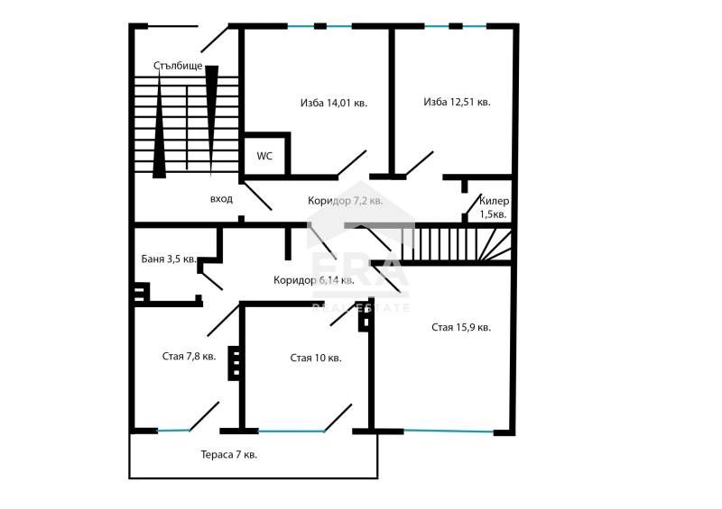
До втория етаж се стига по вътрешно стълбище, което води към още повече възможности за разпределение и организация на пространството. Етажът включва две просторни избени помещения с площ от 26.59 кв.м, подходящи за съхранение. Тук ще намерите и баня с отделна тоалетна, два функционални коридора, както и три самостоятелни стаи, които могат да бъдат оформени според вашите нужди – спални, детски стаи или домашен офис.
На този етаж има и втора тераса, ориентирана на юг, където можете да се насладите на топлината на слънцето през целия ден. Имотът разполага също с практичен килер за допълнително съхранение и таванско помещение, което добавя още един слой функционалност.
Този многостаен апартамент предлага всичко необходимо за комфортен и спокоен живот в един от най-оживените и красиви градове в България.
Свържете се с нас днес за оглед и се убедете сами в потенциала на този имот!
Брокер: Симона Кенарова
08********85
Ера Царевец
телефон: 08********86
Оферта №6501106
Compare listings
Сравняване