ЕКСКЛУЗИВНО! Предлагаме на Вашето внимание, просторен апартамент за продажба, намиращ се в центъра на гр. Велико Търново.
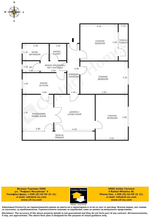
Жилището е разположено на 2-ри жилищен етаж в четириетажна сграда, с изложение Изток / Юг / Запад и площ 127 кв. м.. Разпределението включва три спални, една от които със собствена тераса, кухня, трапезария, дневна, коридор, мокро предверие, даващо достъп до баня, тоалетна, килер и кухнята. Трапезарията и дневната са свързани с портална врата и имат излаз на втора, голяма тераса.
Апартаментът разполага с дървени врати и прозорци, подова настилка от дървен паркет и стени покрити с тапети.
Към жилището има маза, таванско помещение и малкък двор.
Разположен в центъра на града, предлаганият имот е в близост до основно училище и детска градина, както и до парк, супермаркет и автобусна спирка.
Реф. номер:104820
Compare listings
Сравняване