Продава се Офис в София, Люлин 8 – 415 кв.м за 1802 €/кв.м

  • 747,594€
  • 1,801€/m²
Област София-град, гр. София, Люлин 8
  • Офис
  • Тип на имота
  • 415
  • кв.м
  • 2025
  • Година на строителство
За продажба Агенция
Област София-град, гр. София, Люлин 8
  • 747,594€
  • 1,801€/m²

Накратко за имота

  • Офис
  • Тип на имота
  • 415
  • кв.м
  • 2025
  • Година на строителство

Описание

ЕКСКЛУЗИВНО! ЕРА Голд има удоволствието да Ви представи за продажба медицински център в нова съвременна бизнес сграда, разположена в сърцето на един от най-динамично развиващите се райони на София – квартал Люлин. С директен достъп до метростанция „Сливница“ и ключови булеварди, локацията предлага отлична свързаност както за служители, така и за клиенти.

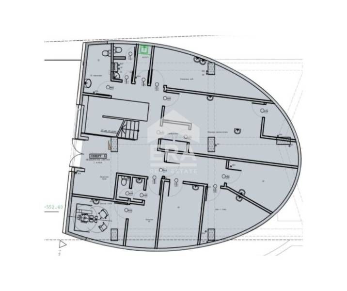
Медицинският център е разположен на партер и първи етаж и разполага със самостоятелен вход, преддверие с рецепция и чакалня, 12 работни помещения, стая за персонал, сервизно помещение, отделна кухня, кабинети и санитарни помещения.

Обща площ: 415.33 кв. м.

Застроена площ: 387.97 кв. м.

Сградата се състои от седем надземни етажа с обща разгъната застроена площ от 5866,74 кв. м. Предвидена е с отделно тяло, специално проектирано за клиника или медицински център. Пространствата в сградата са гъвкави и позволяват индивидуално конфигуриране според нуждите на бъдещите наематели или собственици. В момента сградата е в процес на довършване, като се предлага възможност за персонализирано изпълнение на интериора.

Детайли:

– 7 надземни етажа

– Модерни общи части и панорамен асансьор

– Търговски площи и медицински център

– Паркирането е решено с подземни паркоместа, осигуряващи удобство и директен достъп до сградата.

– АКТ 16 до края на 2025 г.

Сградата е подходящ избор както за собствен бизнес, така и като инвестиция с висок потенциал за отдаване под наем. Съчетанието между локация, модерна визия, функционално разпределение и възможност за медицински или търговски функции превръща сградата в отличен избор за компании с визия за развитие и устойчивост.

Обявената цена е без ДДС!

CreditERA предоставя безплатна консултация и съдействие при финансиране на избрания от Вас имот от всички водещи банки в страната и ще договори най-добрите условия за вас!

Оферта №4062050

Детайли

Обновено на януари 1, 1970 в 12:00 am
  • Цена: 747,594€
  • Квадратура: 415 кв.м
  • Година на строителство: 2025
  • Тип на имота: Офис
  • Операция: За продажба

Допълнителни детайли

  • Строителство: Тухла
  • Етаж: Партер
  • Брой етажи на сградата: 1
  • Отопление: Електричество
  • Град София
  • Област Област София-град
  • Квартал Люлин 8
  • Държава България

0 Отзив

Sort by:
Leave a Review

    Leave a Review

    Compare listings

    Сравняване
    Olx Недвижими Имоти
    • Olx Недвижими Имоти