Имоти Премиер представя изключителен офис с престижна локация в Идеален център, гр. Варна
Имаме удоволствието да ви представим този впечатляващ имот – офис, разположен в новоизградена сграда-паметник на архитектурата и културата, в сърцето на Варна, построен през 2025 г.
Имотът се отличава с уникален стил и функционално разпределение, идеално за съвременни бизнес нужди.
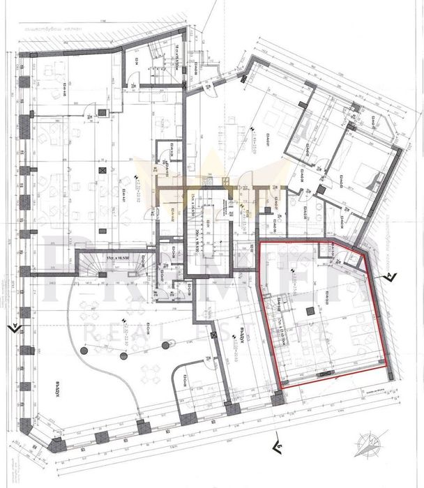
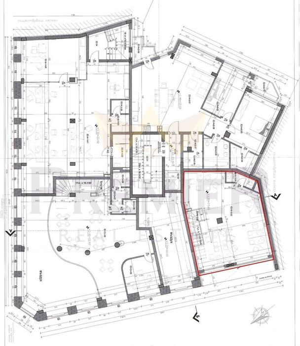
Състои се от:
• Светла офисна площ – 60 кв.м., завършена до ключ
• Самостоятелен вход на първи партерен етаж с преддверие
• Разположен на етаж 2 с лице към улица
Офисът е част от оживена градска среда, в близост до кулинарни и културни дестинации. Идеалният център на Варна предлага удобства на пешеходно разстояние и отлична транспортна връзка.
Перфектен избор за бизнес, който цени стил, престиж и централна локация.
Вашият бизнес адрес в сърцето на Варна!
Цена: 557,658 €
При интерес, моля обадете се на посочения телефон и цитирайте код на обявата 371110
Compare listings
Сравняване