Продава се Парцел в Божурище – 2608 кв.м за 56 €/кв.м

  • 281,287€
  • 55€/m²
Област София-област, гр. Божурище
  • Парцел
  • Тип на имота
  • 2608
  • кв.м
За продажба Агенция
Област София-област, гр. Божурище
  • 281,287€
  • 55€/m²

Накратко за имота

  • Парцел
  • Тип на имота
  • 2608
  • кв.м

Описание

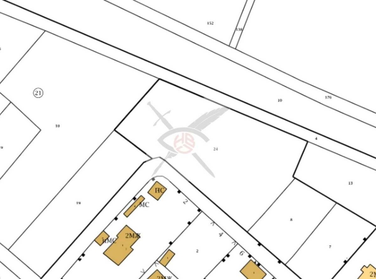
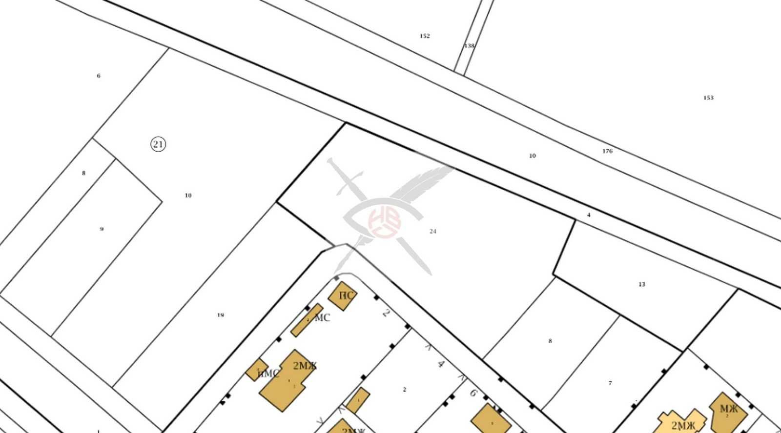
Компания ‘Х’ представя на Вашето внимание поземлен имот в с. Пролеша, общ. Божурище. Парцелът е с площ 2608 кв.м., с лице на две главни улици, с ток, вода и канализация в парцела. Заповядайте, да Ви го покажем! Използвайки нашите услуги, Вие ще получите персонален консултант, съдействие при кандидатстване за кредит, професионален декоратор и екип, който да се погрижи за нужните документи по Вашата сделка. На Ваше разположение сме всеки ден, от понеделник до неделя от 09:00 до 20:00ч. Можете да разчитате на пълно съдействие за отпускане на потребителски и ипотечни кредити! Свържете се с нас на 08*********90 или на 08*********57 и цитирайте кода към имота: 31705.

Детайли

Обновено на януари 1, 1970 в 12:00 am
  • Цена: 281,287€
  • Квадратура: 2608 кв.м
  • Тип на имота: Парцел
  • Операция: За продажба

Допълнителни детайли

  • Регулация: В регулация
  • Вода: С вода
  • Ток: С ток

Особености

  • Град Божурище
  • Област Област София-област
  • Държава България

0 Отзив

Sort by:
Leave a Review

    Leave a Review

    Compare listings

    Сравняване
    Olx Недвижими Имоти
    • Olx Недвижими Имоти