Продава се Парцел в Хасково, Болярово – 680 кв.м за 111 €/кв.м

  • 75,000€
  • 110€/m²
Област Хасково, гр. Хасково, Болярово
Продава се Парцел в Хасково, Болярово - 680 кв.м за 111 €/кв.м - Снимка #4 Продава се Парцел в Хасково, Болярово - 680 кв.м за 111 €/кв.м - Снимка #5
  • Парцел
  • Тип на имота
  • 680
  • кв.м
За продажба Частно лице
Област Хасково, гр. Хасково, Болярово
  • 75,000€
  • 110€/m²

Накратко за имота

  • Парцел
  • Тип на имота
  • 680
  • кв.м

Описание

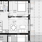
Продавам орегулиран имот, с пълен набор от документи и разрешителни за жилищно строителсво + изготвен и одобрен проект за двуфамилна къща тип ‘близнак’

Детайли

Обновено на януари 1, 1970 в 12:00 am
  • Цена: 75,000€
  • Квадратура: 680 кв.м
  • Тип на имота: Парцел
  • Операция: За продажба

Допълнителни детайли

  • Регулация: В регулация
  • Вода: С вода
  • Ток: С ток
  • Град Хасково
  • Област Област Хасково
  • Квартал Болярово
  • Държава България

0 Отзив

Sort by:
Leave a Review

    Leave a Review

    Compare listings

    Сравняване
    Olx Недвижими Имоти
    • Olx Недвижими Имоти