Продава се Парцел в с. Шипково, Област Ловеч – 1321 кв.м за 19 €/кв.м

  • 25,500€
  • 19€/m²
Област Ловеч, с. Шипково
Продава се Парцел в с. Шипково, Област Ловеч - 1321 кв.м за 19 €/кв.м - Снимка #4 Продава се Парцел в с. Шипково, Област Ловеч - 1321 кв.м за 19 €/кв.м - Снимка #5 Продава се Парцел в с. Шипково, Област Ловеч - 1321 кв.м за 19 €/кв.м - Снимка #6
  • Парцел
  • Тип на имота
  • 1321
  • кв.м

Накратко за имота

  • Парцел
  • Тип на имота
  • 1321
  • кв.м

Описание

Собственик, продава директно УПИ 1321 кв.м, което не намира в Шипково: XIX – 559, кв.2, идентификатор – 83212.501.559, с влязло в сила разрешително за строеж за къща. Строежа на обекта може да започне веднага, подробна проектна документация и количествени сметки.

Намира се на нова асфалтова улица, има канал, вода и ток. Договор за присъединяване към чиста и отпадна вода. На 100м. от църквата от снимките и от центъра, прекрасна гледка.

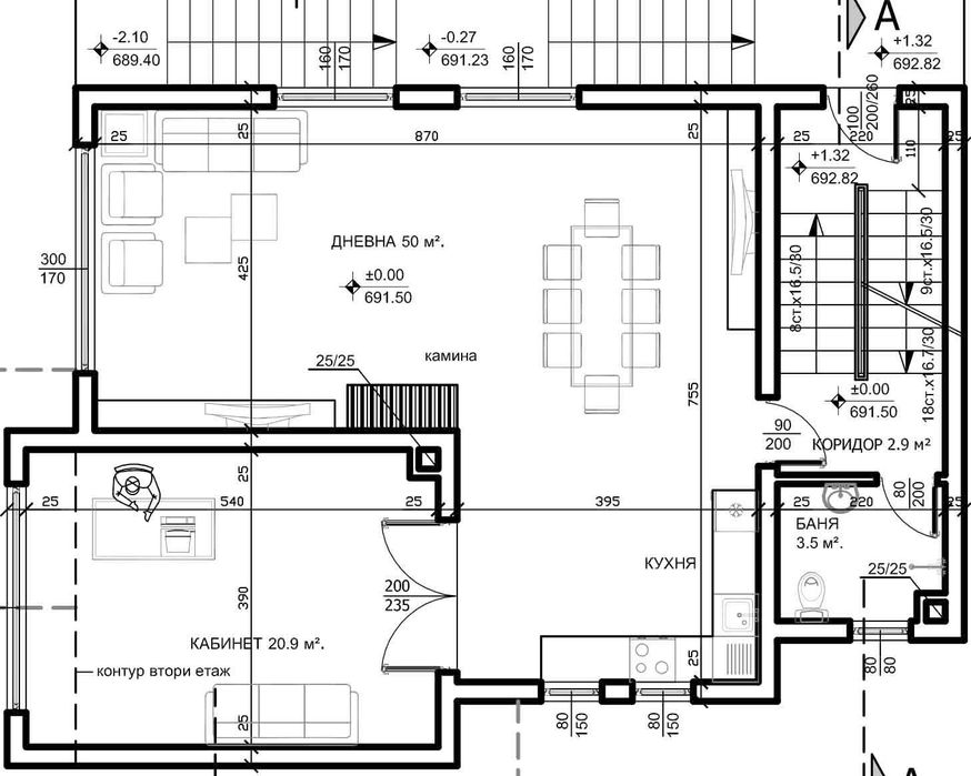
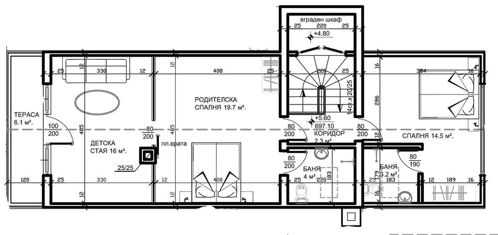
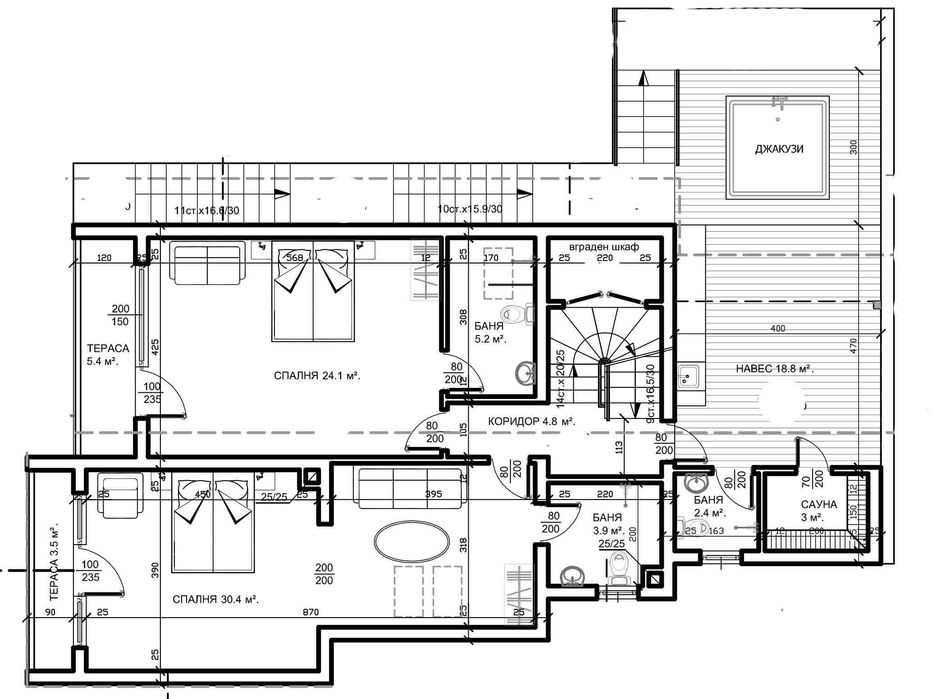
РЗП – 399.7 кв.м. ЗП – 100 кв.м. Къщата е в стил алпийска хижа, на 3 етажа. Състои се както следва от:

– Гаражи, техническо помещение, тераса с навес, BBQ, джакузи и сауна.

– Голяма дневна – с кухня и обособен кът за отдих с камина.

– 2 семейни апартамента за 4-ри членни семейства.

– 2 спални със собствени бани.

– Кабинет.

Всички помещения са проектирани практично и пропорционално спрямо разположенията.

Проект е съобразен, при желание да се категоризират 2 стаи за гости и 2 апартамента за настаняване. Намира се в самия център на планинското курортното селище Шипково, известно с минералните си извори. Къщата е ориентирана да има хубава гледка, гаражите са с топла връзка към жилищната част. Може да видите разпределенията на снимките в обявата. При интерес може да се запознаете и с подробните проекти, за повече информация тел. 08********57

Детайли

Обновено на януари 1, 1970 в 12:00 am
  • Цена: 25,500€
  • Квадратура: 1321 кв.м
  • Тип на имота: Парцел
  • Операция: За продажба

Допълнителни детайли

  • Регулация: В регулация
  • Вода: С вода
  • Ток: С ток
  • Град с. Шипково
  • Област Област Ловеч
  • Държава България

0 Отзив

Sort by:
Leave a Review

    Leave a Review

    Compare listings

    Сравняване
    Olx Недвижими Имоти
    • Olx Недвижими Имоти