Продава се Промишлена сграда в София, Военна рампа – 961 кв.м за 2 €/кв.м

  • 1,714€
  • 2€/m²
Област София-град, гр. София, Военна рампа
  • Промишлена сграда
  • Тип на имота
  • 961
  • кв.м
  • 1965
  • Година на строителство
За продажба Агенция
Област София-град, гр. София, Военна рампа
  • 1,714€
  • 2€/m²

Накратко за имота

  • Промишлена сграда
  • Тип на имота
  • 961
  • кв.м
  • 1965
  • Година на строителство

Описание

Елина Ре Ви представя възможност за наемане или покупка на изключително функционални помещения подходящи както за складова, така и за производствена дейност.

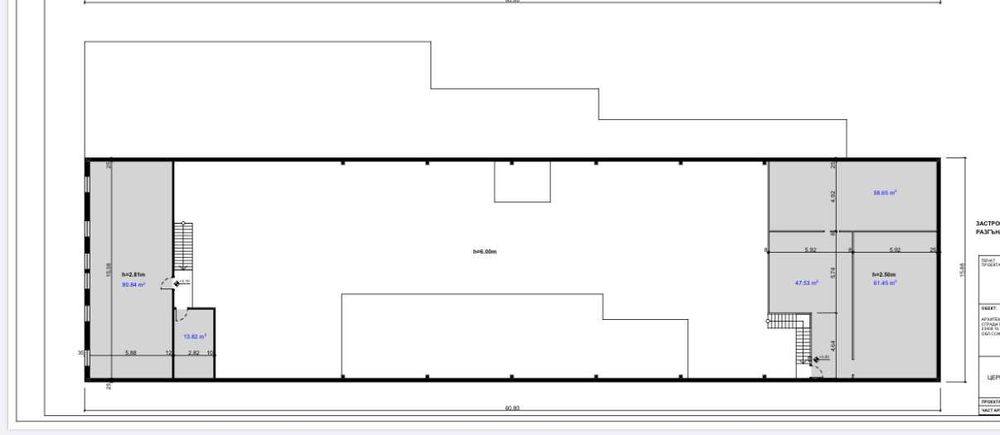
1. Складово промишлено помещение + офиси със застроена площ 961 кв.м. (към него има пристроени две помещения всяко с отделен вход с обща ЗП -314 кв.м.) и разгърната застроена площ 1409 кв.м., представляващо едноетажна масивна сграда. Общата площта на първия етаж e 1274 м2 – кота 0, височина на сградата 4.85 м, под шлайфан бетон. В двете ширини на помещението на втори етаж са разположени отляво 2 офиса (съответно – 90,84 и 13,82 кв.м.) и три отдясно (47,53 кв.м., 58,65 кв.м., 61,45 кв.м.) с височина 2,05 м. Халето има два отделни входа. Трифазен ток. Разположено е в оградена охраняема зона с контрол на достъпа, голям портал, места за паркиране. Цена под наем 3360 лева без ДДС

2. Складово промишлено помещение + офис със застроена площ 732 кв.м. (към него има и две самостоятелни помещения съответно 34 и 38 кв.м.) и разгърната застроена площ 917 кв.м., представляващо едноетажна масивна сграда. Площта на първия етаж e 732 м2, кота 0, височина на помещението 4.85 м, под шлайфан бетон. В двете ширини на помещението на втори етаж са разположени 4 офиса 25,89 кв.м.,12,46 кв.м., 24,08 кв.м. и 23,79 кв.м. с височина 2,05 м. Халето има два отделни входа. Трифазен ток. Разположено е в оградена охраняема зона с контрол на достъпа, голям портал, места за паркиране – цена под наем 2560 лева без ДДС.

Предлагаме под наем и други помещения подходящи за склад или производство.

Детайли

Обновено на януари 1, 1970 в 12:00 am
  • Цена: 1,714€
  • Квадратура: 961 кв.м
  • Година на строителство: 1965
  • Тип на имота: Промишлена сграда
  • Операция: За продажба

Допълнителни детайли

  • Строителство: ПК
  • Брой етажи на сградата: 1
  • Отопление: Локално
  • Град София
  • Област Област София-град
  • Квартал Военна рампа
  • Държава България

0 Отзив

Sort by:
Leave a Review

    Leave a Review

    Compare listings

    Сравняване
    Olx Недвижими Имоти
    • Olx Недвижими Имоти