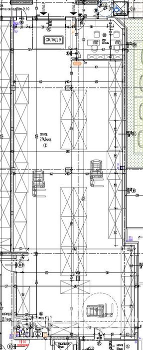
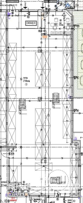
СКЛАД 9 В НОВА И МОДЕРНА СКЛАДОВА БАЗА – ВЪЗРАЖДАНЕ IV
Топ локация – само на 50 м от бул. „3-ти март“!
Lions Group предлага за продажба склад №9 в съвременна складова база във „Възраждане IV“ – перфектен избор за бъдещо развитие, бизнес и инвестиция!
ХАРАКТЕРИСТИКИ НА ИМОТА
-Обща площ: 396,86 кв.м
– Офис: 16,5 кв.м /големината може да бъде променена по време на строителство/
– Санитарно помещение: 4,6 кв.м
– Балкон: 8,6 кв.м
– Височина на склада: 6,25 м
– Височина на рампата: 0,90 м
ПЛОЩИ
– Площ на парцела: 4 600 кв.м
– РЗП: 6 200 кв.м
ПАРКОМЕСТА
– ПМ 39: 19,42 кв.м
– ПМ 40: 21,3 кв.м
– ПМ 41: 16,3 кв.м
– Възможност за закупуване и на ПМ 42 – 15,95 кв.м
СТРОИТЕЛСТВО И ЗАВЪРШВАНЕ
Всококачествено и модерно строителство от доказан изпълнител.
– Подове: шлайфан бетон
– Офис: гипсокартон
– WC: на тапа
– Общи части: луксозно изпълнени
– Срок за завършване: 18 месеца .
** ДОПЪЛНИТЕЛЕН ПЛЮС**
В непосредствена близост предстои изграждане на LIDL, което още повече повишава потенциала и стойността на локацията!
За повече информация /08******47
Реф./14394
Брокер/ Златина Кузманова
Цена на имота / 599 000 €
Compare listings
Сравняване