Директно от строител.
Без комисиона от купувача.
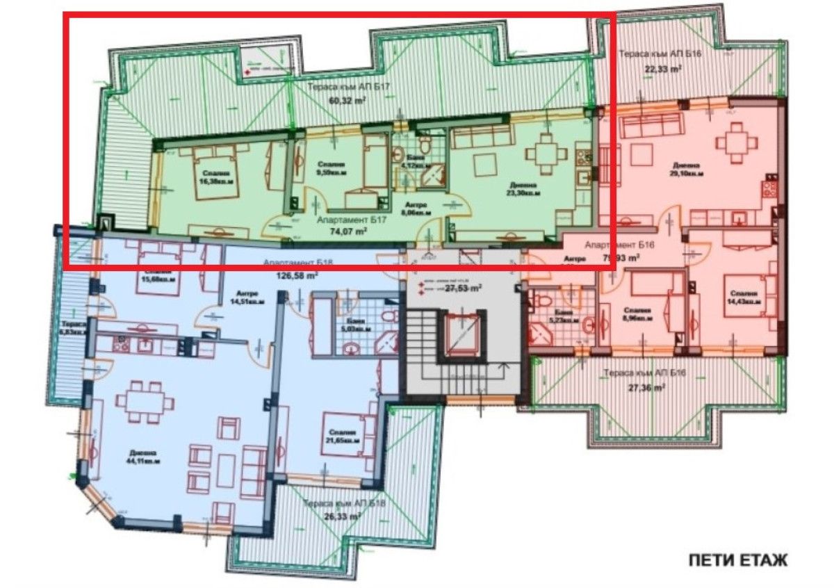
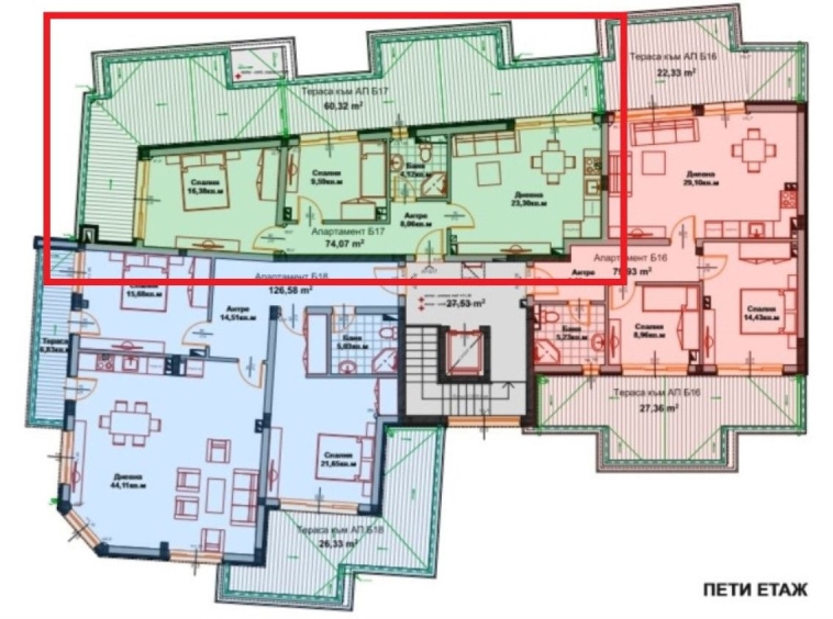
Предлагаме Ви чудесен тристаен апартамент в новострояща се сграда в гр. Айтос. Панорама.
Атрактивно местоположение.
Апартаментът е разположен на последният етаж с прекрасна панорама, състои се от:
– Всекидневна с обособени кът за хранене и кухня, спалня, баня с тоалетна, коридор – 74,07 кв.м.
– Просторна тераса – 60,32 кв.м.
– Склад в сутерена – 2,38 кв.м.
– Общи части – 9,74 св.м.
Степен на завършеност – на тапа.
В сградата ще има асансьор.
Начало на строителството – 2023 год.
Срок за завършване – 2026 год.
Възможност за закупуване на паркомясто.
Предлагаме и други апартаменти двустайни и тристайни в същата сграда.
**Можем да организираме оглед на имота в удобно за вас време, като за целта се свържете с нас на посочените телефони и цитирате този код: ДП-48774.
**Агенция Ем Джи Естейт е член на НСНИ и администратор на лични данни.
**Преди огледа се провежда среща в нашия офис, за да се запознаем с изискванията Ви и за да оформим документи съгласно ЗЗД и ЗМИП.
**По време на огледа се подписва Протокол за оглед.
**За този имот не се дължи комисион към агенцията.
**Предлагаме Ви юридическо съдействие през целия процес на покупката,
**Лицензиран кредитен консултант ще Ви съдейства при банково кредитиране.
Compare listings
Сравняване