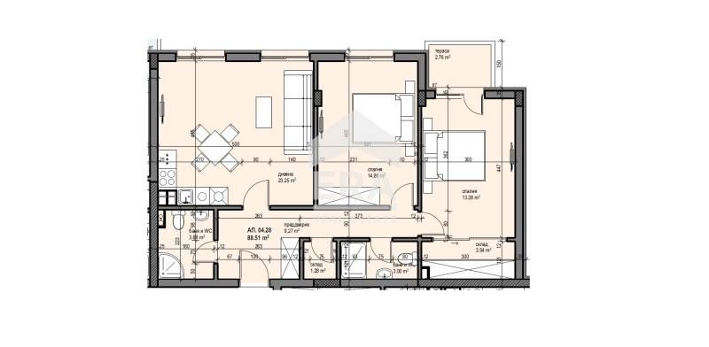
ЕРА Фаворит предлага за продажба просторен тристаен апартамент в новострояща се сграда в луксозен затворен комплекс, недалеч от центъра на гр. Банкя. Разпределението включва входно антре, просторна дневна с кухненски бокс и трапезария, уютната спалня с гардеробна и излаз към балкон – място за сутрешно кафе, втора спалня, склад, две бани с тоалетни. Площ на апартамента – 89/ 98 кв.м..
Изложение: Север. Имотът е подходящ за инвестиция.
Имотът е част от нов затворен комплекс с най-високо качество на строителство и използвани материали. Отоплението ще бъде на газ. Сградата е с висока енергийна ефективност и последно поколение изолация срещу акустичен и ударен шум. На прозорците ще бъде монтирана немска шест-камерна PVC дограма REHAU/Thyssen. В сградата ще бъдат монтирани и безшумни асансьори KONE. Акцент е и подобрената топлоизолация на покрива.
Етап на строителство – начален, излята фундаментна плоча. Акт 16 се очаква в края на 2027 г. Такса поддръжка за комплекса – 1 Евро без ДДС/ кв.м.
Местоположението на комплекса е на изключително тиха локация с прекрасна гледка към Витоша и Люлин планина, в близост до множество частни имоти, две училища, частна и държавна детска градина, магазини и търговски обекти. Редовен градски транспорт в района и връзка с метростанция Сливница.
Ако искате да живеете сред природата, в спокойна и комфортна среда, заповядайте на презентация при нас! Комплексът е свободен от автомобили и предлага всички удобства на курортния град Банкя.
Агенция ЕРА Фаворит е член на НСНИ и администратор на лични данни.
Преди огледа се провежда среща в нашия офис, за да се запознаем с изискванията Ви и за да оформим документи съгласно ЗЗД и ЗМИП.
По време на огледа се подписва Протокол за оглед. За този имот се дължи комисион към агенцията.
Предлагаме Ви юридическо съдействие през целия процес на покупката.
Агенцията съдейства за безплатна кредитна консултация от CREDITERA – лицензиран финансов брокер към БНБ!
Всеки ERA офис е с независимо управление и собственост!
НАШАТА МРЕЖА ИМА ВЕЧЕ ПОВЕЧЕ ОТ 45 ОФИСА! НИЕ СМЕ НАД 400 ОПИТНИ КОНСУЛТАНТА В ЦЯЛА БЪЛГАРИЯ! СТАНИ ЕДИН ОТ НАС!
Оферта №7200158
Compare listings
Сравняване