Продава се Тристаен апартамент в Бургас, Братя Миладинови – 91 кв.м за 1869 €/кв.м

  • 170,000€
  • 1,868€/m²
Област Бургас, гр. Бургас, Братя Миладинови
  • Апартамент
  • Тип на имота
  • 91
  • кв.м
  • 1993
  • Година на строителство
За продажба Агенция
Област Бургас, гр. Бургас, Братя Миладинови
  • 170,000€
  • 1,868€/m²

Накратко за имота

  • Апартамент
  • Тип на имота
  • 91
  • кв.м
  • 1993
  • Година на строителство

Описание

Ние от агенция “Титан Пропъртис” предлагаме за продажба Тристаен апартамент в саниран блок разположен в кв. Братя Миладинови, гр. Бургас.

Имотът се намира в близост додетска градина ” Вълшебство”, бензиностанция, автобусна спирка и с лесен достъп до Центъра на града.

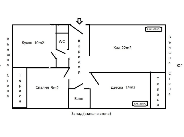
Жилището се намира на 1-ви етаж от общо 8 с асансьор и разполага с площ от 91 кв.м., разгърнати в следното практично разпределение:

• Входно антре

• Хол

• Кухня

• Спалня

• Детска стая

• Тоалетна

• Баня с тоалетна

• Тераса

Изложение: Изток/ Запад

Състояние: за ремонт

Агенцията съдейства за банково кредитиране с всички водещи банки в страната при най-добри условия!

За оглед на това и други атрактивни предложения, не се колебайте да ни потърсите на посочения телефон (Viber, WhatsApp, Telegram) или да ни изпратите данните си чрез формата за запитване на сайта. Реф. номер: 2097982

Детайли

Обновено на януари 1, 1970 в 12:00 am
  • Цена: 170,000€
  • Квадратура: 91 кв.м
  • Стаи: 3
  • Година на строителство: 1993
  • Тип на имота: Апартамент
  • Операция: За продажба

Допълнителни детайли

  • Строителство: Панел
  • Етаж: 1-ви
  • Брой етажи на сградата: 8
  • Отопление: Електричество
  • Обзавеждане: Необзаведен
  • Състояние на сградата: Завършена
  • Преход: Без преход

Особености

  • Град Бургас
  • Област Област Бургас
  • Квартал Братя Миладинови
  • Държава България

0 Отзив

Sort by:
Leave a Review

    Leave a Review

    Compare listings

    Сравняване
    Olx Недвижими Имоти
    • Olx Недвижими Имоти