ERA Имоти Хасково има удоволствието да представи за продажба изключително функционален и комфортен тристаен апартамент в новострояща се сграда, реализирана от доказан и утвърден инвеститор, познат със своята коректност, внимание към детайла и високо качество на изпълнение. Проектът се отличава с модерна архитектура, прецизно планирани пространства и използване на строителни материали от най-висок клас, осигуряващи надеждност, енергийна ефективност и дълготрайна стойност на имота.
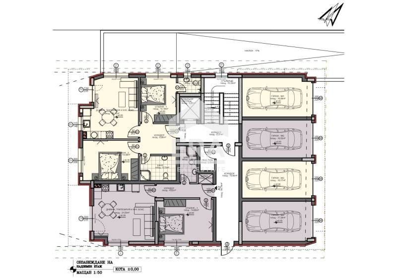
Предлагаме Ви апартамент №1, който е разположен на първи етаж от пететажна жилищна сграда и е с обща площ от 86,72 кв.м. Имотът се отличава със северозападно изложение, което гарантира отличен баланс между естествена светлина и комфорт през всички сезони.
Функционално разпределение:
-входно антре
-баня с тоалетна
-спалня
-просторна дневна с трапезария и кухненски бокс с излаз към тераса
-родителска спалня
Сградата е ситуирана в един от най-предпочитаните квартали на Хасково – кв. „Любен Каравелов“, който предлага съчетание между тиха жилищна атмосфера и удобна градска инфраструктура. В близост се намират училища, детски градини, магазини, заведения и транспортни връзки, което прави локацията подходяща както за семейно жилище, така и за инвестиция с цел отдаване под наем.
Апартаментът ще бъде издаден на шпакловка и замазка, с напълно завършени общи части.
Сградата ще разполага с асансьор, като допълнително могат да се закупят гараж или парко място.
Предимства на имота:
-строителство от утвърден инвеститор с доказано качество
-съвременна архитектура и отлична енергийна ефективност
-прецизно разпределение на помещенията
-висококачествени материали и изпълнение
-атрактивна и търсена локация
Този апартамент е отличен избор за клиенти, които търсят съвременен, удобен и качествен дом в един от най-добре развиващите се райони на Хасково.
ЕРА Е РЕГИСТРИРАН КЪМ БНБ КРЕДИТЕН ПОСРЕДНИК И КАТО ТАКЪВ ОФИЦИАЛНО ПРЕДОСТАВЯ ВСИЧКИ ВИДОВЕ КРЕДИТИ КЪМ ВСИЧКИ БАНКИ.
Оферта №6800957
Compare listings
Сравняване