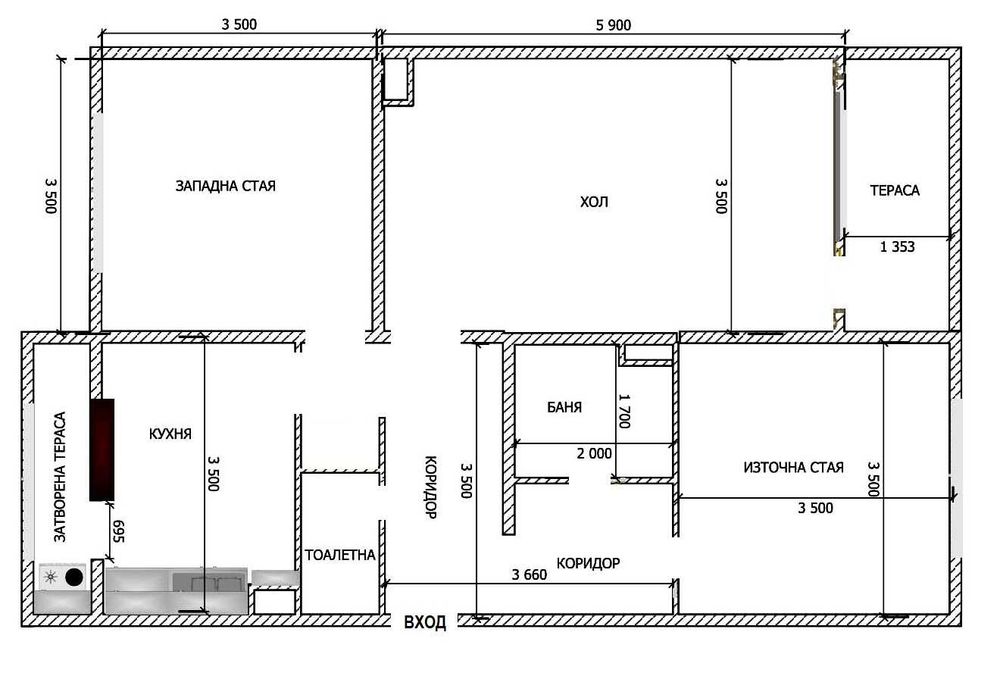
!!! ДВЕ СПАЛНИ !!! PVC ДОГРАМА !!! ВЪНШНА ТОПЛОИЗОЛАЦИЯ !!! Тристаен апартамент на цената на двустаен. Просторен и светъл тристаен апартамент в кв.Младост 2 на гр.Монтана. Апартаментът е вътрешен, разположен на осми жилищен етаж, което гарантира спокойствие и комфорт. Сградата е с работещ асансьор, безплатен обществен паркинг и ремонтиран покрив преди няколко години. Чиста полезна площ от 78 кв.м. разпределени между антре, разширена кухня, дневна с тераса, две самостоятелни спални, баня, отделна тоалетна, мазе. PVC-дограма и щори на всички помещения. Външна топлоизолация. Вътрешна топлоизолация на тавани с каменна вата и гипс картон. Подови настилки с теракота и ламиниран паркет. Жилището е с ревизирана ел.инсталация и скрити кабели за телевизия и интернет. Частично обзаведено. Изложение Изток/Запад. Мазе 4 кв.м. Цената на имота е съобразена с моментното му състояние. С изрядни документи за собственост. Районът предлага отлична инфраструктура с бърза пътна връзка до центъра на града. В близост има големи хранителни вериги, училище, аптека и множество заведения и магазини. Свободен, обществен, паркинг пред сградата. Този апартамент е идеалният избор за семейство или инвестиция, благодарение на своето удобно местоположение и функционално разпределение. За повече информация и организиране на оглед: ”ХЕЛИОС-М – Брокер недвижими имоти”. Телефони за връзка 0=8=8=8=2=1=0=4=2=8 и 0=9=6=3=0=7=0=6=0. Агенцията предлага на своите клиенти пълен пакет от консултантски, посреднически и юридически услуги при закупуване, продажба и отдаване под наем на недвижими имоти. На ваше разположение е екип от брокери, адвокати и архитекти с голям опит в сферата на недвижимите имоти. Нашите служители ще изготвят всички необходими документи за нотариалното приключване на сделката. При нас ще получите и съдействие за закупуването на желаният от вас имот чрез банков кредит. Интернет сайт на агенцията: WWW.HELIOS-M.COM
Compare listings
Сравняване