Компания Х представя на Вашето внимание тристаен апартамент в Центъра.
МЕСТОПОЛОЖЕНИЕ: Центърът на Пловдив е отличен избор за тези, които търсят удобен достъп до различни части на града. Той е едно от най-привлекателните и динамични места за живеене, което съчетава богатото историческо наследство с модерния начин на живот.
СТРОИТЕЛСТВО: Разположен на 1-ви етаж в тухлена сграда, ново строителство.
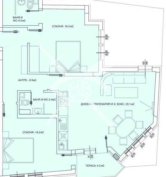
РАЗПРЕДЕЛЕНИЕ: Жилището разполага с площ от 114 кв.м., разпределена по следния начин: Входно антре, дневна с кухненски бокс, две спални, две бани с тоалетни ,тераса и мазе.
СЪСТОЯНИЕ: В строеж.
Заповядайте да Ви го покажем. Използвайки нашите услуги Вие ще превърнете закупуването на новия си дом в едно приятно изживяване, ще получите персонален консултант, съдействие при кандидатстване за кредит от всички банки в България, интериорни дизайнери и екип, който да се погрижи за нужните документи по Вашата сделка. На Ваше разположение сме всеки ден, от понеделник до неделя от 09:00 до 20:00ч. Възползвайте се от безплатна консултация в наш офис, където ще ви спестим време и ще ви запознаем с всички актуални имоти в България, отговарящи на Вашето търсене. Свържете се с нас на 088777990 или на 08******90 и цитирайте кода към имота: 961-28200
Compare listings
Сравняване