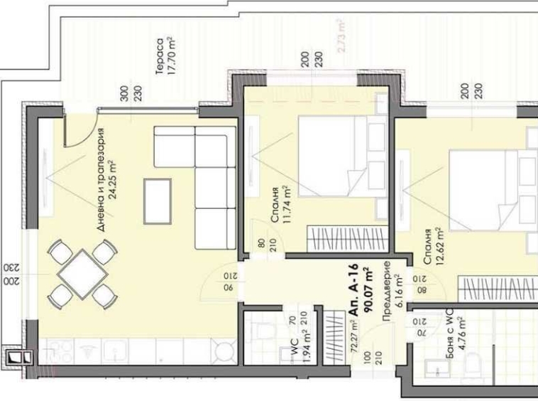
Продава се Тристаен апартамент в Пловдив, Христо Смирненски – 112 кв.м за 902 €/кв.м

  • 100,960€
  • 901€/m²
Област Пловдив, гр. Пловдив, Христо Смирненски
  • Апартамент
  • Тип на имота
  • 112
  • кв.м
  • 2025
  • Година на строителство
За продажба Агенция
Област Пловдив, гр. Пловдив, Христо Смирненски
  • 100,960€
  • 901€/m²

Накратко за имота

  • Апартамент
  • Тип на имота
  • 112
  • кв.м
  • 2025
  • Година на строителство

Описание

При интерес за това и още много други предложения, не се колебайте да се обадите на посочения номер!

Детайли

Обновено на януари 1, 1970 в 12:00 am
  • Цена: 100,960€
  • Квадратура: 112 кв.м
  • Стаи: 3
  • Година на строителство: 2025
  • Тип на имота: Апартамент
  • Операция: За продажба

Допълнителни детайли

  • Строителство: Тухла
  • Етаж: 3-ти
  • Брой етажи на сградата: 5
  • Отопление: Електричество
  • Обзавеждане: Необзаведен
  • Състояние на сградата: В строеж
  • Преход: С преход
  • Град Пловдив
  • Област Област Пловдив
  • Квартал Христо Смирненски
  • Държава България

0 Отзив

Sort by:
Leave a Review

    Leave a Review

    Compare listings

    Сравняване
    Olx Недвижими Имоти
    • Olx Недвижими Имоти