Компания Х представя на Вашето внимание тристаен апартамент в Христо Смирненски.
МЕСТОПОЛОЖЕНИЕ: На главен път в любимоят както за живеене, така и за инвестиция с цел отдавване под наем квартал Христо Смирненски.
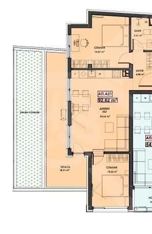
РАЗПРЕДЕЛЕНИЕ: Разполага с площ от 115кв.м., разгърната в следното функционално разпределение: хол с всекидневна и кухненски кът, две спални ,антре, баня с тоалетна и голяма тераса -18.31кв.
Имота разполага с изба, която не е включена в квадратурата на апартамента-бонус!
СЪСТОЯНИЕ: С акт 15 към май 2025г, в неголяма бутикова сграда с по 3 апартамента на етаж.
С възможност за закупуване на гараж или паркомясто!
Заповядайте да Ви го покажем. Използвайки нашите услуги Вие ще превърнете закупуването на новия си дом в едно приятно изживяване, ще получите персонален консултант, съдействие при кандидатстване за кредит от всички банки в България, интериорни дизайнери и екип, който да се погрижи за нужните документи по Вашата сделка. На Ваше разположение сме всеки ден, от понеделник до неделя от 09:00 до 20:00ч. Възползвайте се от безплатна консултация в наш офис, където ще ви спестим време и ще ви запознаем с всички актуални имоти в България, отговарящи на Вашето търсене. Нужен Ви е кодът към имота: 82979
Compare listings
Сравняване