Премиум Пропърти Пловдив, отличена на национален конкурс като Дебютна агенция за недвижими имоти за 2021-2023 година има удоволствието да ви представи тристаен апартамент в района на Христо Смирненски.
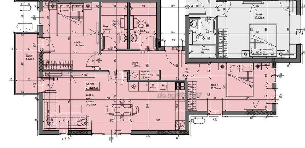
Разпределение: Входно антре, дневна с кухненски бокс, 2 спални, 2 бани-wc, склад, тераса.
Изложение: Юг
Има възможност за закупуване на паркомясто или гараж.
Локация: Местоположението на комплекса е в привлекателен район, съвсем близо до „Гребната база“. Локация, гарантираща бърз и лесен достъп до градските удобства и удоволствия.
Сградата ще вземе акт 16 ноември месец тази година!
Покупката на жилище е изключително важен момент от живота на всеки човек и за това искаме да предложим най- доброто.
За да се отличим от всички останали на пазара, ние се стремим да предложим най-добрата услуга, свързана с недвижимото имущество.
Точно заради това ние предлагаме допълнителен набор от услуги, за да сме конкурентно способни и да можем да предложим всичко за вашия недвижим имот.
Ето и услугите:
•Търсене на имот по зададени критерии.
•Огледи на имоти с наш брокер.
•Продажби на готови или новостроящи се имоти.
•Дългосрочни и кратокосрочни наеми.
•Оценки и консултации.
•Юридически услуги.
•Архитектурни проекти.
•Интериорни проекти и решения.
•Мениджмънт на строителни обекти.
•Строителство, ремонти и обзавеждане.
•Управление и стопанисване на имоти
•Съдействие за кредити и ипотеки.
•Агенцията работи и през почивните дни.
При интерес към този или друг имот се свържете с нас за повече информация, безплатна консултация или уговорка за оглед.
Номер на обява – 3030
Compare listings
Сравняване