Компания X представя на Вашето внимание тристаен апартамент в кв. Христо Смирненски.
МЕСТОПОЛОЖЕНИЕ: Квартал Христо Смирненски е един от големите жилищни квартали в град Пловдив. Христо Смирненски е живописен и разнообразен квартал, който предлага удобства за живот и развлечения на своите жители.
СТРОИТЕЛСТВО: Апартаментът е разположен на 2-ри етаж в сграда ново строителство.
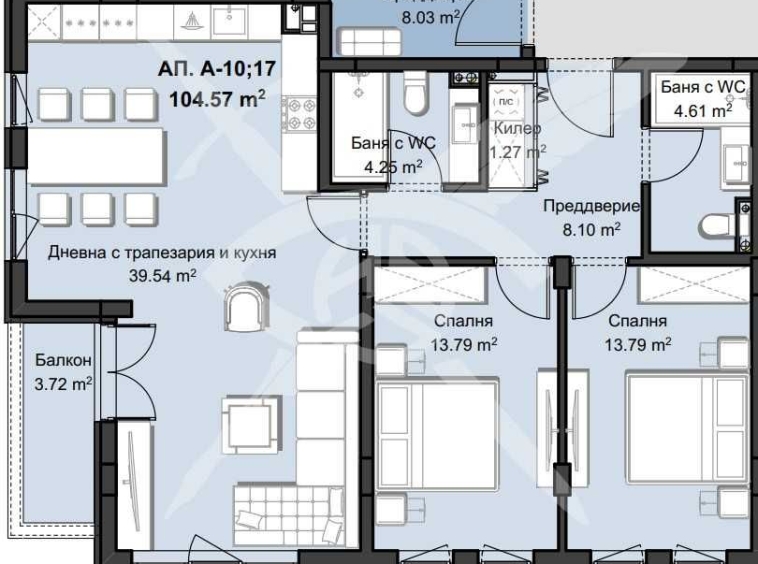
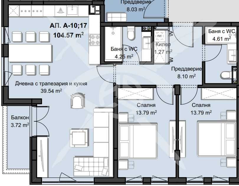
РАЗПРЕДЕЛЕНИЕ: Жилището разполага с площ от 120 кв.м., която е разпределена по следния начин: предверие, дневна с трапезария и кухня, две спални, две бани с тоалетна, килер и балкон, към апартамента има и изба.
СЪСТОЯНИЕ: Необзаведен.
СХЕМА НА ПЛАЩАНЕ:
20% – На предварителен договор
80% – Акт 16
Заповядайте да Ви го покажем. Използвайки нашите услуги Вие ще превърнете закупуването на новия си дом в едно приятно изживяване, ще получите персонален консултант, съдействие при кандидатстване за кредит от всички банки в България, интериорни дизайнери и екип, който да се погрижи за нужните документи по Вашата сделка. На Ваше разположение сме всеки ден, от понеделник до неделя от 09:00 до 20:00ч. Възползвайте се от безплатна консултация в наш офис, където ще ви спестим време и ще ви запознаем с всички актуални имоти в България, отговарящи на Вашето търсене. Свържете се с нас и цитирайте кода към имота: 804-23795
Compare listings
Сравняване