Компания X представя на Вашето внимание тристаен апартамент в Христо Смирненски.
МЕСТОПОЛОЖЕНИЕ:Кварталът Христо Смирненски е един от много живописните и популярни жилищни райони в град Пловдив. Той се намира в югоизточната част на града и предлага комбинация от спокойна обстановка, зеленина и удобства за живеене.
СТРОИТЕЛСТВО: Апартаментът се намира на 3 етаж , тухла.
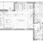
РАЗПРЕДЕЛЕНИЕ: Жилището разполага с площ от 123 кв.м. две с трапезария и кухненски бокс, две спални, баня с тоалетна, тоалетна, лоджия.
СЪСТОЯНИЕ: В строеж.
Заповядайте да Ви го покажем. Използвайки нашите услуги Вие ще превърнете закупуването на новия си дом в едно приятно изживяване, ще получите персонален консултант, съдействие при кандидатстване за кредит от всички банки в България, интериорни дизайнери и екип, който да се погрижи за нужните документи по Вашата сделка. На Ваше разположение сме всеки ден, от понеделник до неделя от 09:00 до 20:00ч. Възползвайте се от безплатна консултация в наш офис, където ще ви спестим време и ще ви запознаем с всички актуални имоти в България, отговарящи на Вашето търсене. Свържете се с нас на 08******90 /на цената на един градски разговор/ или на 08******90 и цитирайте кода към имота:15-657
Compare listings
Сравняване