Компания ‘X’ представя на Вашето внимание тристаен апартамент в кв.Христо Смирненски.
МЕСТОПОЛОЖЕНИЕ:Квартал Христо Смирненски е един от големите жилищни квартали в град Пловдив.Христо Смирненски е живописен и разнообразен квартал, който предлага удобства за живот и развлечения на своите жители.
СТРОИТЕЛСТВО: Апартаментът е разположен на 3-етаж в тухлена сграда.
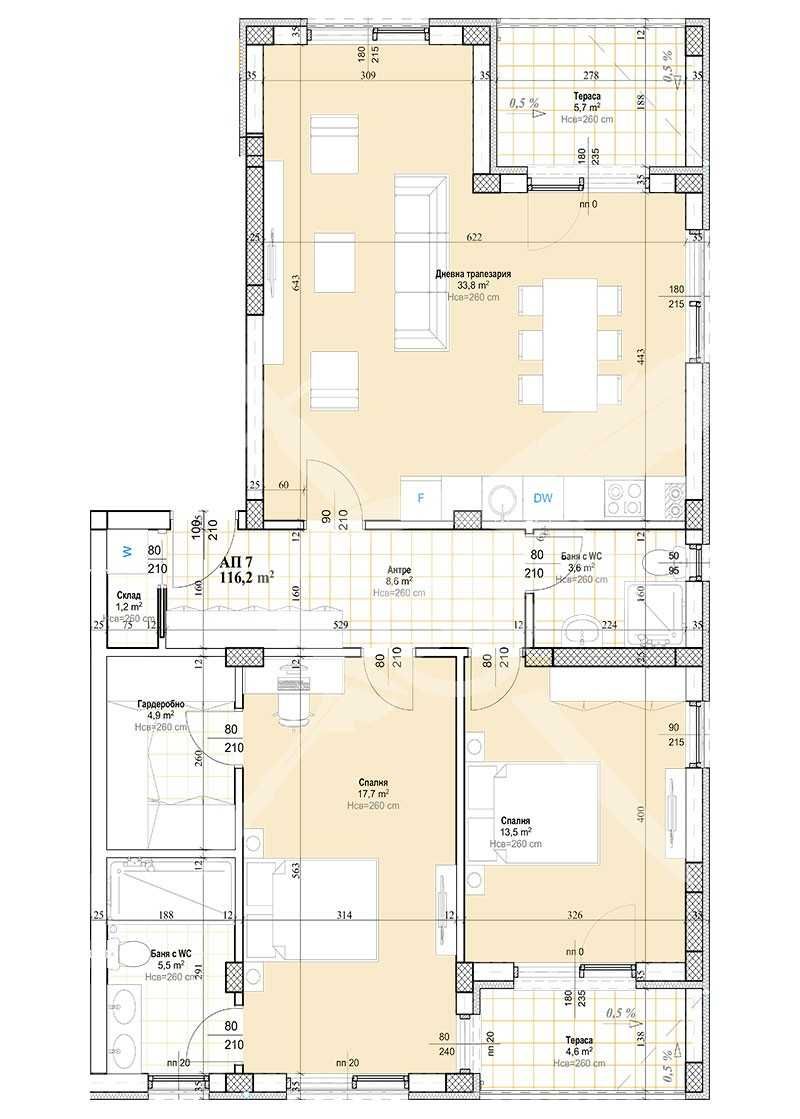
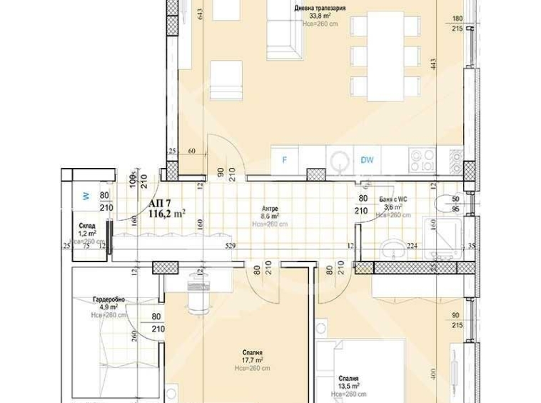
РАЗПРЕДЕЛЕНИЕ: Жилището разполага с площ от 132кв.м. дневна с кухненски бокс и трапезария,две спални, баня и тоалетна, тераса.
СЪСТОЯНИЕ: Необзаведен.
Заповядайте да Ви го покажем. Използвайки нашите услуги Вие ще превърнете закупуването на новия си дом в едно приятно изживяване, ще получите персонален консултант, съдействие при кандидатстване за кредит от всички банки в България, интериорни дизайнери и екип, който да се погрижи за нужните документи по Вашата сделка. На Ваше разположение сме всеки ден, от понеделник до неделя от 09:00 до 20:00ч. Възползвайте се от безплатна консултация в наш офис, където ще ви спестим време и ще ви запознаем с всички актуални имоти в България, отговарящи на Вашето търсене. Свържете се с нас нужен Вие само кодът на имотът:715-22312
Compare listings
Сравняване