Продава се Тристаен апартамент в Пловдив, Христо Смирненски – 133 кв.м за 902 €/кв.м

  • 119,899€
  • 902€/m²
Област Пловдив, гр. Пловдив, Христо Смирненски
Продава се Тристаен апартамент в Пловдив, Христо Смирненски - 133 кв.м за 902 €/кв.м - Снимка #4 Продава се Тристаен апартамент в Пловдив, Христо Смирненски - 133 кв.м за 902 €/кв.м - Снимка #5
  • Апартамент
  • Тип на имота
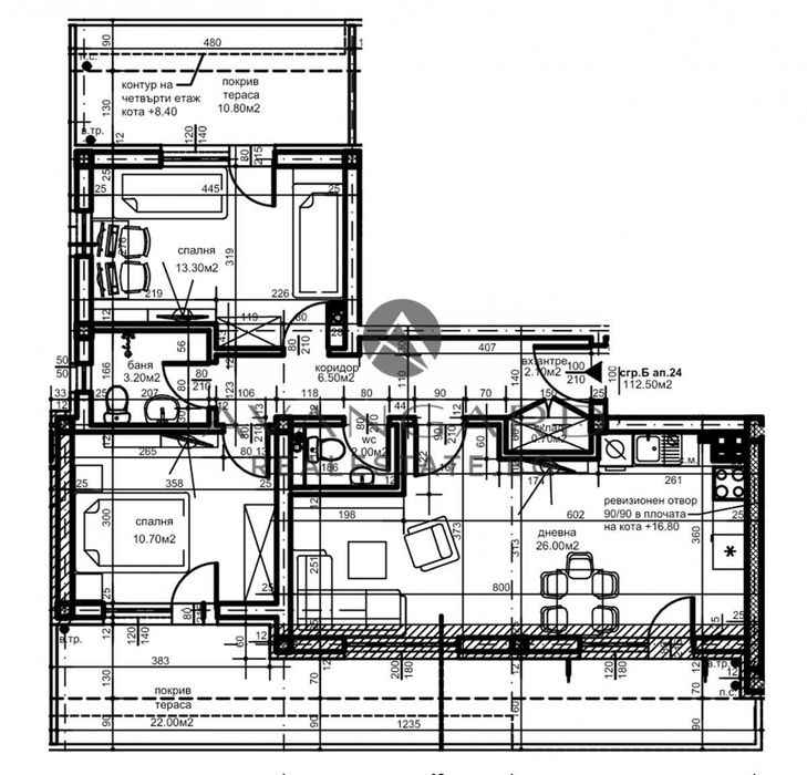
  • 133
  • кв.м
  • 2027
  • Година на строителство
За продажба Агенция
Област Пловдив, гр. Пловдив, Христо Смирненски
  • 119,899€
  • 902€/m²

Накратко за имота

  • Апартамент
  • Тип на имота
  • 133
  • кв.м
  • 2027
  • Година на строителство

Описание

оф.22473

ПРЕДЛАГАМЕ Ви да инвестирате във Вашето бъдеще . Стартови продажби на цени от 860 €кв.м. ( очаквана цена към акт 16 – 1500€+кв.м. или гарантирани над 50% марж на цената при задържане на сегашните нива на пазара).

ЦЕНИ ОТ 860€ кв.м ДО 1100€кв.м!

ФИКСИРАНА ЦЕНА БЕЗ ПРОМЯНА СПОРЕД ИНДЕКСАЦИИ ИЛИ ИНФЛАЦИЯ ДО КРАЯ НА СТРОИТЕЛСТВОТО !

ВЪЗМОЖНОСТ ЗА ПОКУПКА ЧРЕЗ БАНКОВ КРЕДИТ !

Предлагаме Ви апартаменти в новострояща се ниска сграда , разположена на тиха и спокойна локация в гр. Пловдив, кв. Христо Смирненски .

Утвърден строител с 32г. опит , безупречна репутация и 40 построени и реализирани сгради ! Инвеститора строи върху свой терен , без обезщетение и със собствени средства БЕЗ КРЕДИТИ !

Цена на кв.м. от 860 € до 1100€ според етажа и изложението на апартамента.

Едностайни апартаменти на цена от 49 799€ за 40кв.м.

Двустайни апартаменти на цена от 53 499€ за 47кв.м.

Тристайни апартаменти на цена от 83 499€ за 72кв.м.

Възможност за покупка на надземни гаражи и паркоместа.

Изключително удобна схема на плащане !Разсрочено плащане в процес на строежа :

– Първа вноска – 30% – при подписване на предварителен договор.

– Втора вноска – 20% – на средата на сграда

– Трета вноска – 20% – на акт 14

– Четвърта вноска – 20% – 3месеца след акт 14

– Пета вноска – 10% – когато е готова сградата

АКТ 16 се очаква до април на 2027г.

Авангард Риъл Естейт предлага Висока сигурност при покупка на имот и цялостно съдействие до финализиране на сделката пред нотариус.

Детайли

Обновено на януари 1, 1970 в 12:00 am
  • Цена: 119,899€
  • Квадратура: 133 кв.м
  • Стаи: 3
  • Година на строителство: 2027
  • Тип на имота: Апартамент
  • Операция: За продажба

Допълнителни детайли

  • Строителство: Тухла
  • Етаж: 5-ти
  • Брой етажи на сградата: 5
  • Отопление: Електричество
  • Обзавеждане: Необзаведен
  • Състояние на сградата: В строеж
  • Преход: С преход

Особености

  • Град Пловдив
  • Област Област Пловдив
  • Квартал Христо Смирненски
  • Държава България

0 Отзив

Sort by:
Leave a Review

    Leave a Review

    Compare listings

    Сравняване
    Olx Недвижими Имоти
    • Olx Недвижими Имоти