Продава се Тристаен апартамент в Пловдив, Христо Смирненски – 84 кв.м за 1100 €/кв.м

  • 92,400€
  • 1,100€/m²
Област Пловдив, гр. Пловдив, Христо Смирненски
  • Апартамент
  • Тип на имота
  • 84
  • кв.м
  • 2024
  • Година на строителство
За продажба Агенция
Област Пловдив, гр. Пловдив, Христо Смирненски
  • 92,400€
  • 1,100€/m²

Накратко за имота

  • Апартамент
  • Тип на имота
  • 84
  • кв.м
  • 2024
  • Година на строителство

Описание

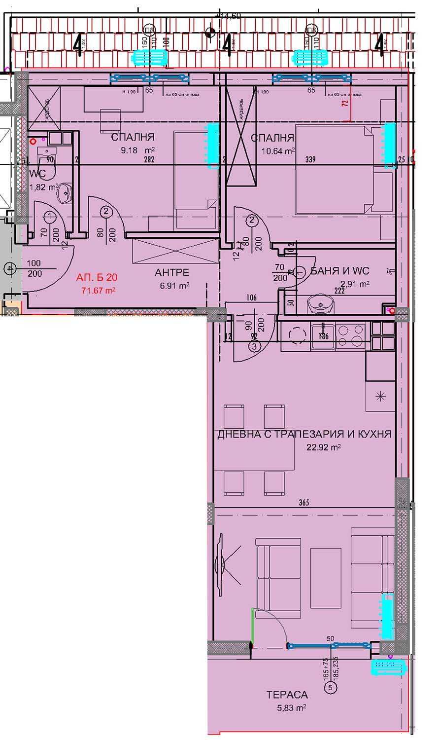
Компания за недвижими имоти ”Deluxe Homes” има удоволствието да Ви представи тристаен апартамент с АКТ 16 в един от най-перспективните райони на гр. Пловдив – кв. Христо Смирненски.

• Основни характеристики:

Разпределение: Дневна, трапезария,. кух. бокс, две спални. б-wc,wc, тераса

Изложение: Юг и Север-Изток

Местоположение: кв. Христо Смирненски

– Сградата се намира в близост до големи верига магазини, училища и детски градини както и пешеходно разстояние от Център, гр. Пловдив.

Доставяме резултатите, които сме обещали. Създаваме очаквания на клиентите си, които можем да посрещнем.

Инвестираме доверие, както в екипа си, така и в клиентите си.

”Deluxe Homes” предлага:

• Посредничество при покупка и продажба на недвижим имот.

• Сътрудничество за всякакъв вид кредитиране.

• Управление на имоти.

• Юридическо съдействие.

• Следпродажбени услуги.

• Безплатна консултация в наш офис.

• Работно време всеки ден от 08:00 до 21:00.

Не пропускайте възможността да разгледате този имот! Свържете се с нас за допълнителна информация и уговаряне на огледи!

КОД НА ОБЯВАТА: 140963

Детайли

Обновено на януари 1, 1970 в 12:00 am
  • Цена: 92,400€
  • Квадратура: 84 кв.м
  • Стаи: 3
  • Година на строителство: 2024
  • Тип на имота: Апартамент
  • Операция: За продажба

Допълнителни детайли

  • Строителство: Тухла
  • Етаж: 9-ти
  • Брой етажи на сградата: 11
  • Отопление: Електричество
  • Обзавеждане: Необзаведен
  • Състояние на сградата: В строеж
  • Преход: Без преход
  • Град Пловдив
  • Област Област Пловдив
  • Квартал Христо Смирненски
  • Държава България

0 Отзив

Sort by:
Leave a Review

    Leave a Review

    Compare listings

    Сравняване
    Olx Недвижими Имоти
    • Olx Недвижими Имоти